ATTENTION. The books are accessible only via the Tor Browser. Follow the guide HERE

 

 

 

 

 

OVERVIEW / PHOTOS ANS PLANS

 

 

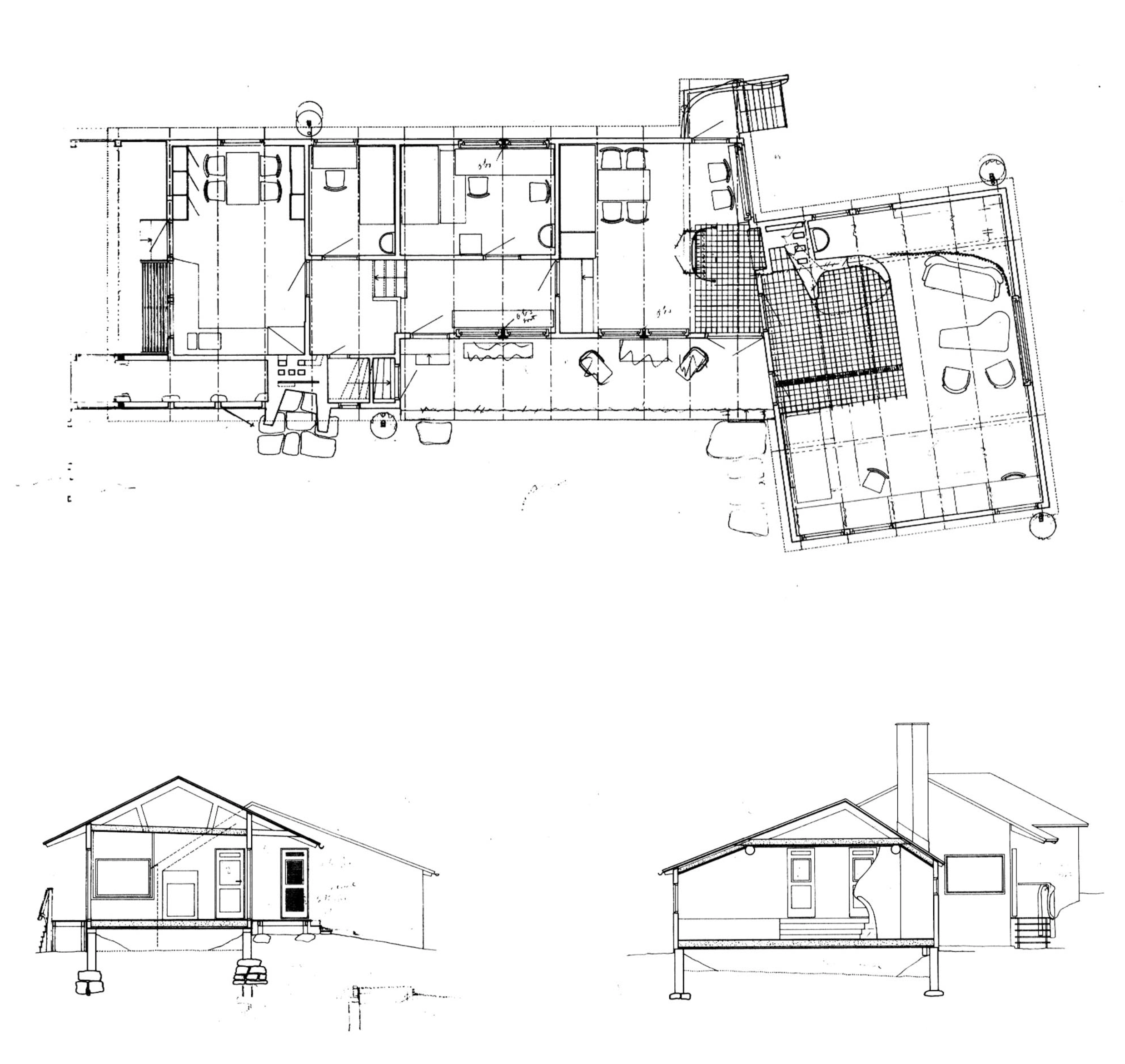
Name   Asplund’s Villa
     
Architects   ASPLUND, ERIK GUNNAR
     
Date   1936-1940
     
Address   Stennäs, Sweden
     
School    
     
Floor Plan    
     
Description  

 

     
     
     
     
     
Photos and Plan