HOME
ARCHITECTS
STYLES
OBJECTS
LIBRARY
DONATE
Anna’s
Archive
Library
Genesis
Sci
hub
Z
Library
ATTENTION. The books are accessible only via
the Tor Browser
. Follow the guide
HERE
.
OVERVIEW /
PHOTOS ANS PLANS
Name
Whitney Museum of American Art
Architects
BREUER, MARCEL
(with H.Smith)
Date
1964-1966
Address
New York, USA
School
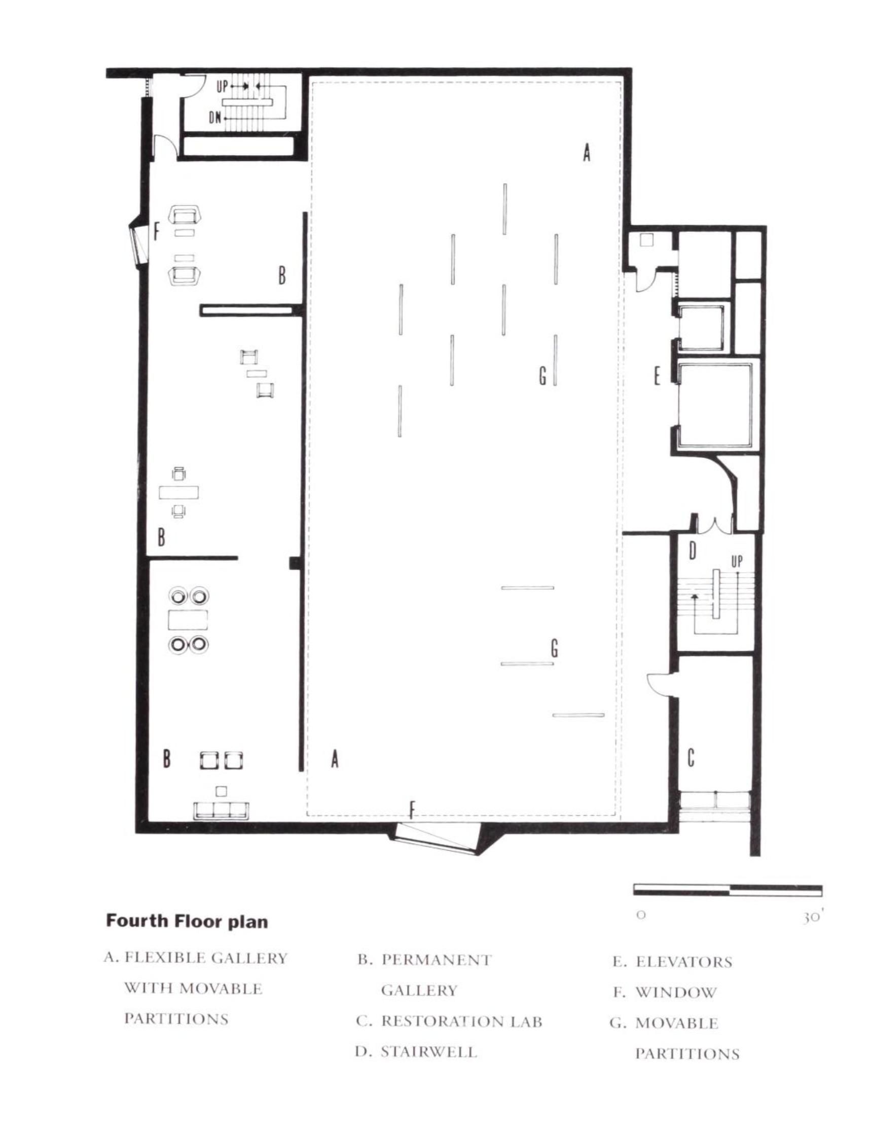
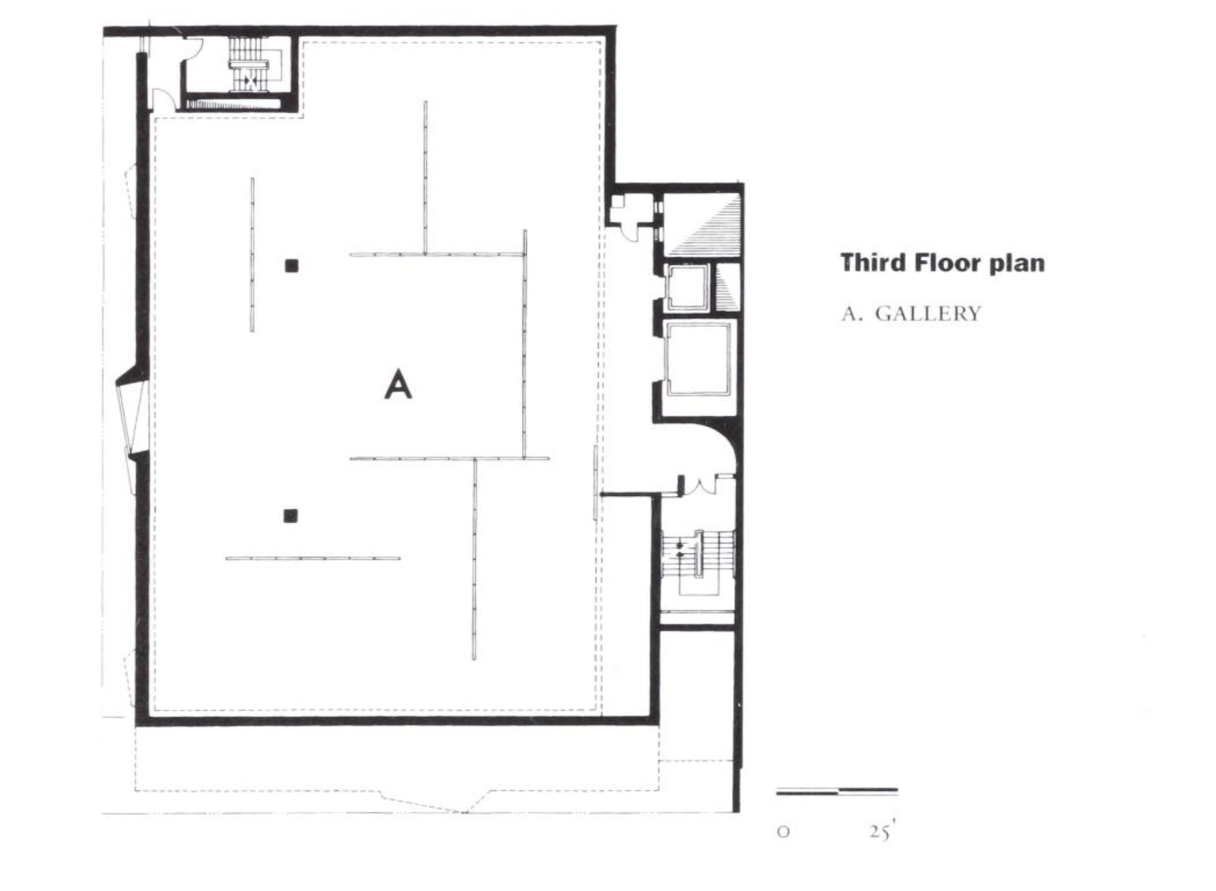
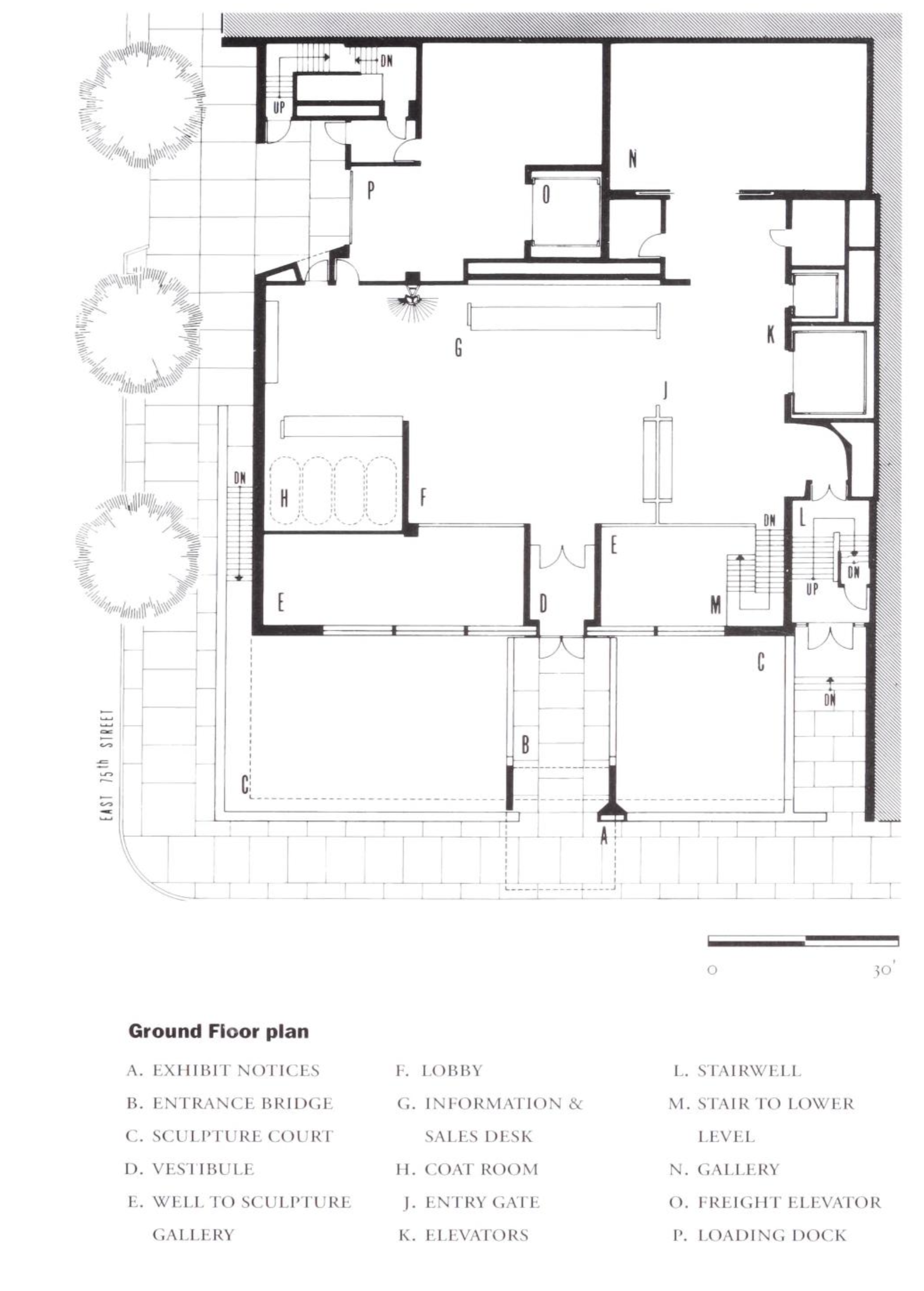
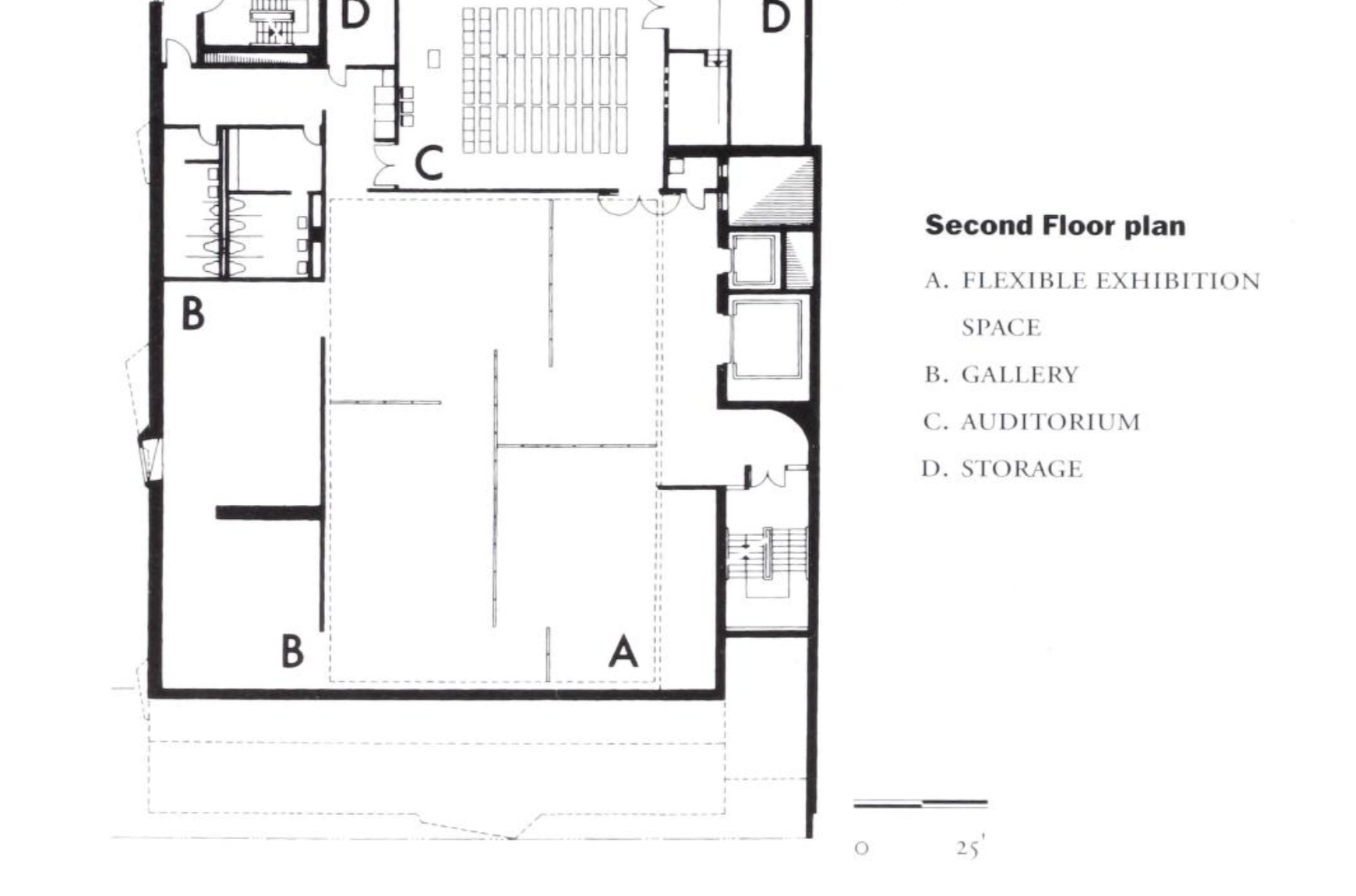
Floor Plan
Description
The Whitney Museum (Building Block) (Building Block S.)
Photos and Plan