ATTENTION. The books are accessible only via the Tor Browser. Follow the guide HERE

 

 

 

 

 

 

 

Name   Bauhaus building in Dessau
     
Architects   GROPIUS, WALTER
     
Date   1925-1926
     
Address  
Gropiusallee 3806846 Dessau-Roßlau, DESSAU, GERMANY
     
School    
     
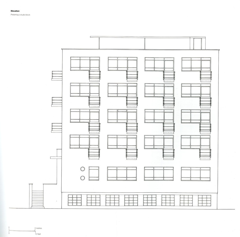
Floor Plan    
     
Description  

The Bauhaus, near the banks of the River Elbe in Dessau, Germany, is a spectacular piece of construction. The main building – the nucleus of the school – was completed in 1926, but it has recently been repaired and looks not just bright, dashing, and modern, but also futuristic; not bad for a building that is nearly 100 years old. And near the main building are other structures, some designed slightly later and a few recently recreated, that reveal that this was once one of the most avant-garde creative centres of the modern world.

The Bauhaus was a school of design, but it was also an institution that embraced and promoted a specific social, artistic, and political vision of the future. It envisaged an egalitarian socialist state in which good design was seen as essential for mankind’s well-being. No only were better, healthier homes and cities for workers to be created, but also all the objects needed in the home and in the city were to be rethought from first principles. All was to be related, by reference to shared design principles, in order to create total and integrated works of architecture.

When the buildings at Dessau were constructed, the Bauhaus was not a new institution, nor were its ideas entirely novel. The Bauhaus had its roots in the arts and crafts school founded in 1906 in Weimar and directed by the progressive architect Henry van de Velde. Forced to resign in 1915 because he was Belgian and thus an enemy alien, van der Velde recommended that the school be taken over by a German, Walter Gropius. But the First World War, mounting in destructive ferocity, meant that the school became dormant and Gropius did not take up the directorship in Weimar until 1919. Having served during the war (as a sergeant major on the Western Front), Gropius was well aware of the evils that result when pioneering technology is misused by man. This sombre lesson of the war, and the loss of innocence of the new machine age, had a great influence on Gropius and impressed upon him the urgency of the need for radical social change. So, under Gropius, the Bauhaus was driven by social purpose and by the determination to create a better world, with healthier and more humane buildings, for the welfare of the common man.

Although these aims had various expressions, one thing soon became absolutely clear: at the Bauhaus, the unthinking reference to history and past styles was over. Instead, beauty and meaning were to come from fitness for purpose, from the honest expression of materials and means of construction, and from the function that the object – be it a building or a chair – was to fulfil.

As Gropius explained in an early article on design: ‘All inessential details are subordinated to a great, simple representational form which finally, when its definitive shape has been found, must constitute the symbolic expression of the inner meaning of the modern artefact … automobile and railroad, steamship and sailing yacht, airship and aircraft have, through form, become symbols of speed … In them technological form and artistic form have become a close organic unity’.9

If form was to follow function, and the objective and practical laws that governed the machine were to be applied to architecture and the crafts, then art had to become more scientific, and well-organized research was essential. It became necessary to consider the practical demands of the brief in great detail and to devise the most efficient way to achieve the optimum result. The elegant and minimal attainment of a design goal, utilizing the potential of new materials and means of production, became the ideal.

Gropius’ Bauhaus Manifesto of 1919 reveals how this ideal was to be achieved and leaves no doubt as to the utopian vision of the institute. ‘The ultimate aim of all creative activity is a building! … Architects, painters, and sculptors must once again come to know and comprehend the composite character of a building … Let us then create a new guild of craftsmen without the class distinctions that raise an arrogant barrier between craftsmen and artist! Together let us desire, conceive, and create the new building of the future, which will embrace architecture and sculpture and painting in one unity and which will one day rise towards the heavens from the hands of a million workers like the crystalline symbol of a new faith.’

Gropius turned what had started as a craft school into what was essentially the powerhouse of an art movement with a social and artistic mission that became one of the cornerstones of Modernism. The aim, quite simply, was to use art and architecture to create a better and more egalitarian world.

Gropius’ early years as director of the Bauhaus were difficult, and by 1924 the institution was obliged to move to the industrial and socialist-sympathetic town of Dessau. Within a year of moving, the Bauhaus occupied a building purpose-designed by Gropius.

The structure that Gropius designed in 1925 is a powerful architectural statement – a tangible demonstration of the design principles of the Bauhaus school and a glimpse into the future of architecture. In its design, the building is a direct expression of its construction and its purpose, and it realizes the potential of new materials. Its large studio windows are filled with huge areas of glass and its reinforced concrete-frame structure is used to create open-plan and flexible interior spaces. All overt reference to history is gone, all ornament is an expression of function, and everything is doing a practical job. The interior illustrates the theory of total design. Everything is considered and coordinated – lights, railings, and furniture all speak the same bold, functional language.

In April 1928 Gropius resigned as director and was replaced by Swiss architect Hannes Meyer, whose Marxist convictions put the school increasingly at odds with growing Nazi power. In 1930 Meyer was replaced by Ludwig Mies van der Rohe, but despite his attempts to de-politicize the school, the Nazis closed the Bauhaus in 1932. It reopened in Berlin but in April 1933 was once again closed by the Nazi authorities, who declared the Bauhaus ‘one of the most obvious refuges of the Jewish-Marxist conception of “art”’. In 1937, Mies fled to the United States. Gropius soon followed, leaving for England in 1934 and also arriving in the United States in 1937.

The Bauhaus had lasted only fourteen years, but its influence was, and remains, massive. It has become part of the culture of our time – artistically, socially, and politically – and has played a major role in forging the physical world in which we now live.

 

Cruickshank D. A History of Architecture in 100 Buildings. Harper Collins UK., 2015.

 

FURTHER READING

http://architecture-history.org/schools/BAUHAUS.html#M

     
     
     
     
     
Photos and Plan    
     
   
     
   
     
   
     
   
     
   
     
   
     
   
     
   
     
   
     
   
     
   
     
   
     
   
     
   
     
   
     
   
     
   
     
   
     
   
     
   
     
   
     
   
     
   
     
   
     
   
     
   
     
   
     
   
     
   
     
   
     
   
     
   
     
   
     
   
     
   
     
   
     
   
     
   
     
   
     
   
     
   
     
   
     
   
     
   
     
   
     
   
     
   
     
   
     
   
     
   
     
   
     
   
     
   
     
   
     
   
     
   
     
   
     
   
     
   
     
   
     
   
     
   
     
   
     
   
     
   
     
   
     
   
     
   
     
   
     
   
     
   
     
   
     
   
     
   
     
   
     
   
     
   
     
   
     
   
     
   
     
   
     
   
     
   
     
   
     
   
     
   
     
   
     
   
     
   
     
   
     
   
     
   
     
   
     
   
     
   
     
   
     
   
     
   
     
   
     
   
     
   
   
     
     
     
     
Videos