ATTENTION. The books are accessible only via the Tor Browser. Follow the guide HERE

 

 

 

 

 

OVERVIEW / PHOTOS ANS PLANS

 

 

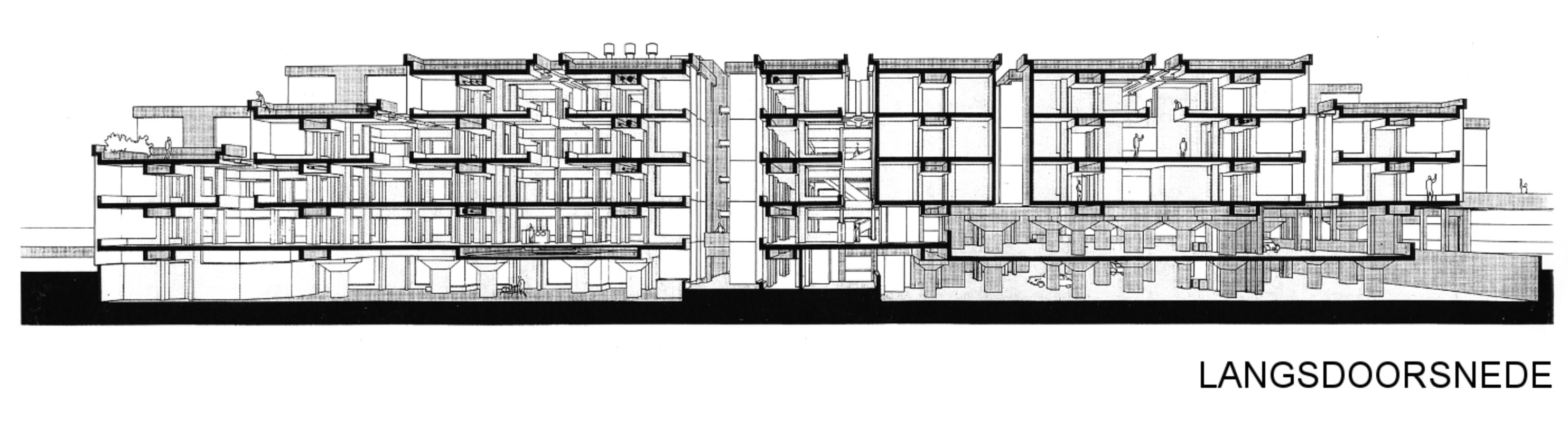
Name   Central Beheer Office Building
     
Architects   HERTZBERGER, HERMAN
     
Date   1968-1972
     
Address   Apeldoorn, Netherlands
     
School    
     
Floor Plan    
     
Description    
     
     
     
     
     
Photos and Plan