ATTENTION. The books are accessible only via the Tor Browser. Follow the guide HERE

 

 

 

 

 

OVERVIEW / PHOTOS ANS PLANS

 

 

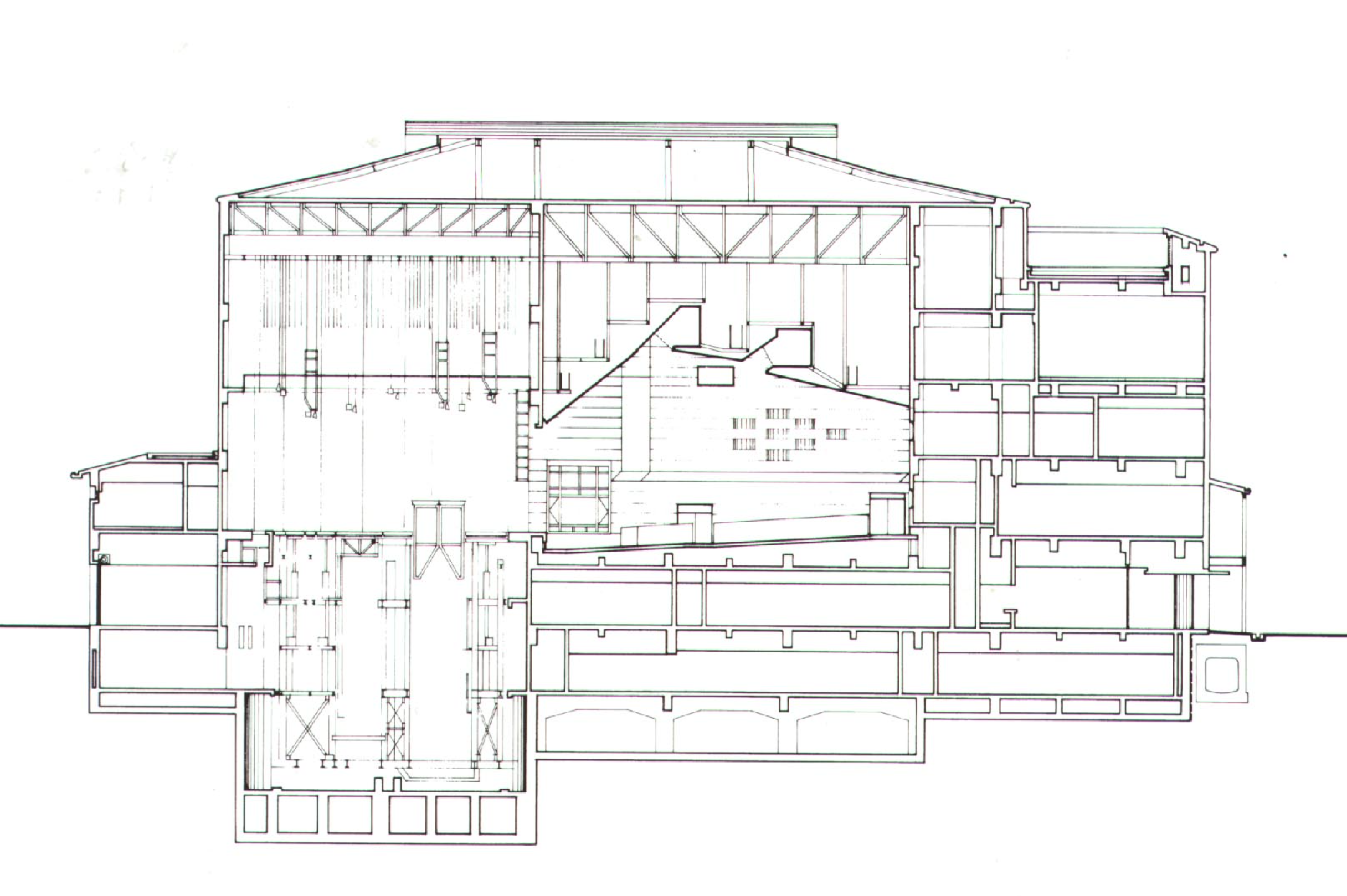
Name   National Bunraku Theater
     
Architects   KUROKAWA, KISHO
     
Date   1979-1983
     
Address   Osaka, Japan
     
School    
     
Floor Plan    
     
Description    
     
     
     
     
     
Photos and Plan