ATTENTION. The books are accessible only via the Tor Browser. Follow the guide HERE

 

 

 

 

 

OVERVIEW / PHOTOS ANS PLANS

 

 

Name   Victoria Central
     
Architects   KUROKAWA, KISHO
     
Date   1988
     
Address   Melbourne, Australia
     
School    
     
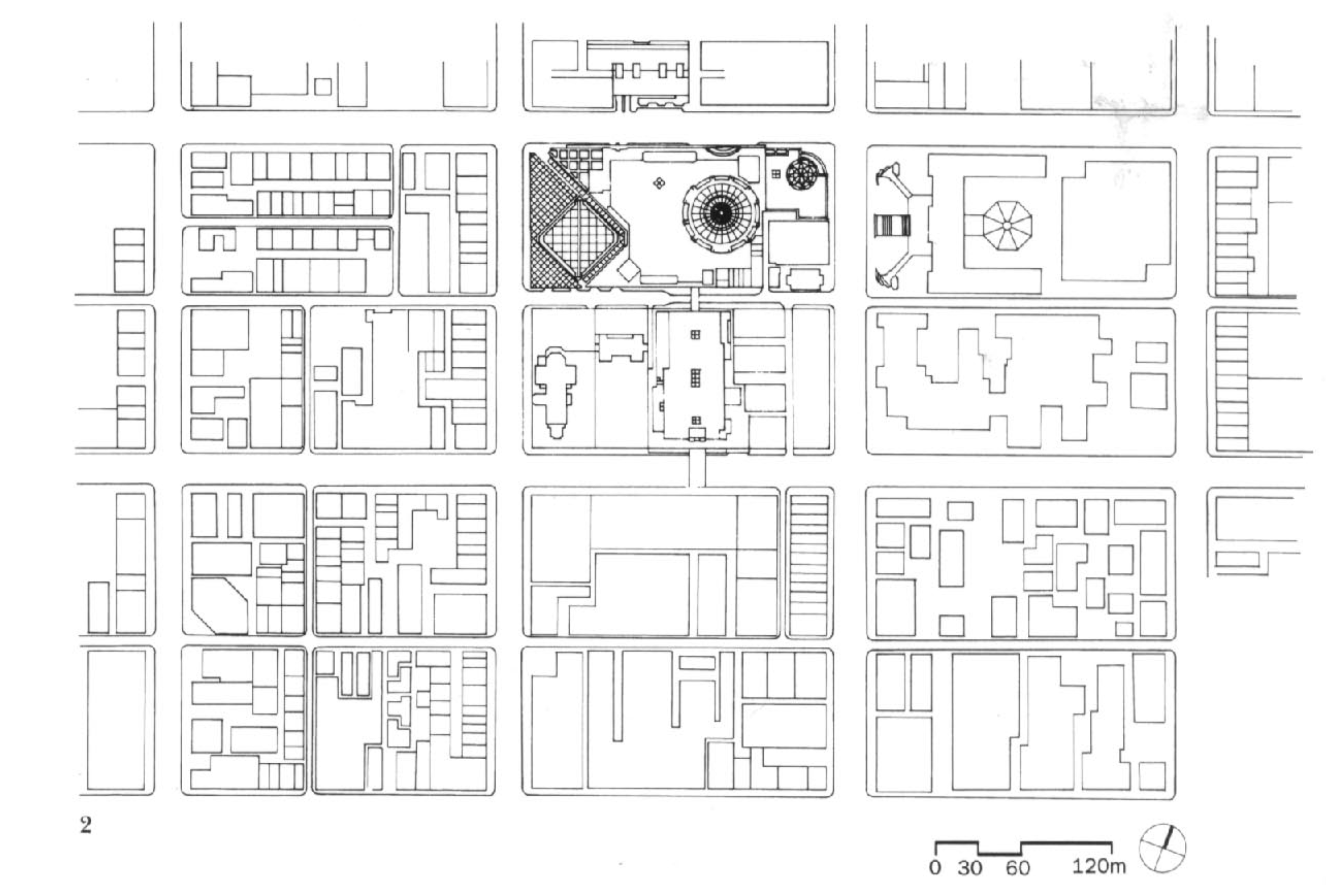
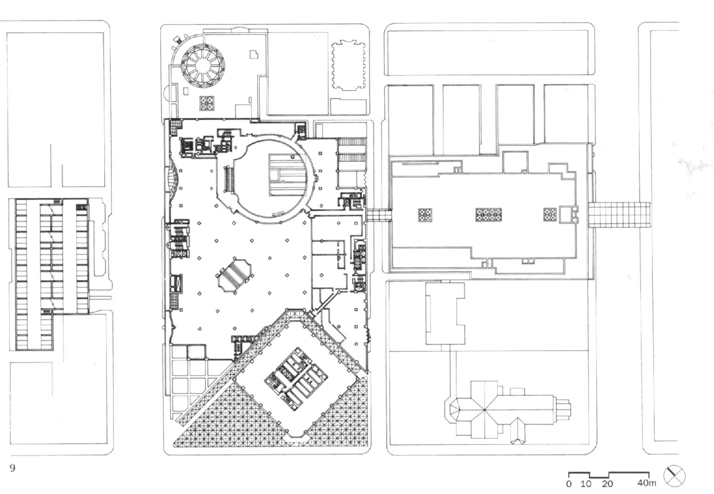
Floor Plan    
     
Description    
     
     
     
     
     
Photos and Plan