ATTENTION. The books are accessible only via the Tor Browser. Follow the guide HERE

 

 

 

 

 

OVERVIEW / PHOTOS ANS PLANS

 

 

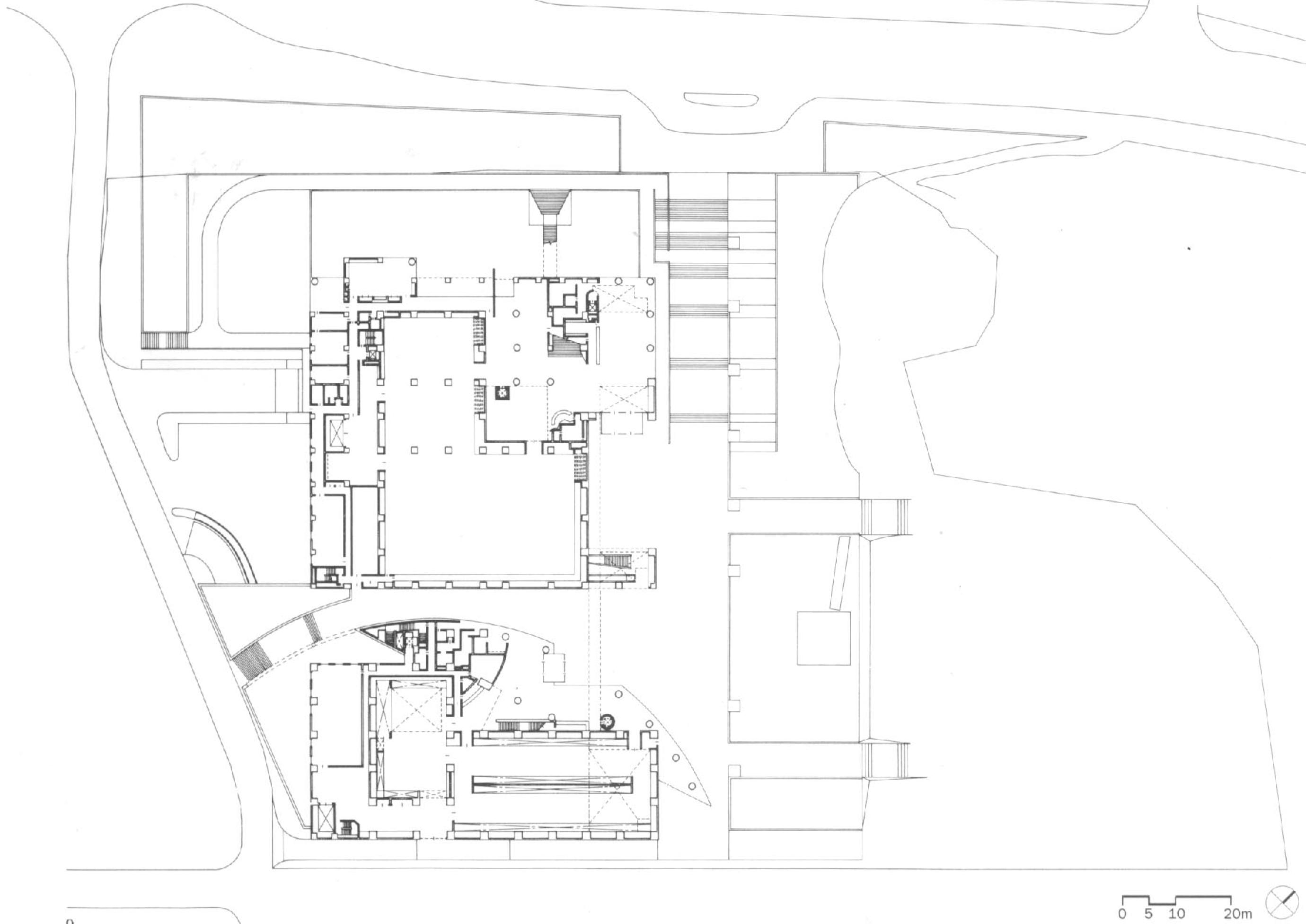
Name   The Museum of Modern Art
     
Architects   KUROKAWA, KISHO
     
Date   1990-1994
     
Address   Wakayama, Japan
     
School    
     
Floor Plan    
     
Description    
     
     
     
     
     
Photos and Plan