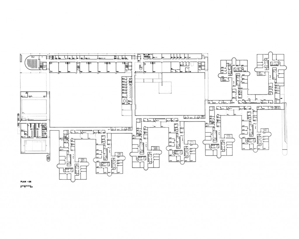
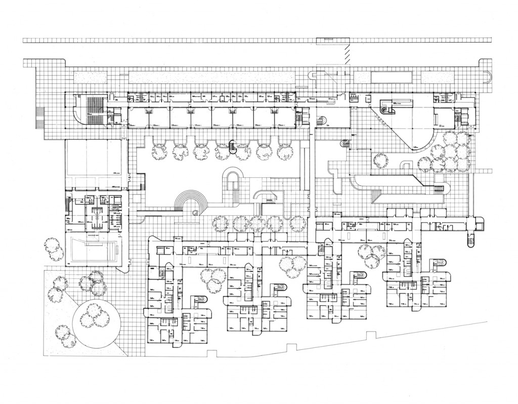
The Bronx Developmental Center was originally planned as a total-care residential facility for 750 physically disabled and mentally handicapped children. The project, as built, accommodates 380 residents, as well as serving as an out-patient facility. While the program’s complex technical requirements demanded particular attention, the design is above all an attempt to create a sense of place that responds to the special feelings and needs of the residents.
The triangular site occupies part of a blighted industrial no-man’s land – a traffic island – bounded by the Hutchinson River Parkway to the east and a network of railroad tracks to the west. Although a large, dilapidated warehouse by the rail yards was to be renovated, the new building could not be related to its setting in a conventional sense- there being no defining contextual organization or architectural reference on which to base a set of design propositions. The logical strategy was, then, to allow the new structure to create its own context, and the general layout opens inward to a realm where the resident is protected from the external setting.
The two major programmatic elements divide around the lateral axis of the composition: the support services wing in the rectangular block on the west, and the residential units and services in the stepped volumes on the east. The gymnasium and physical therapy building on the south, and the two large courtyards, each with a corridor at its northern edge, stitch the composition together. |