ATTENTION. The books are accessible only via the Tor Browser. Follow the guide HERE

 

 

 

 

 

OVERVIEW / PHOTOS ANS PLANS

 

 

Name   Shamberg House
     
Architects   MEIER, RICHARD
     
Date   1972 - 1974
     
Address   Chappaqua, USA
     
School    
     
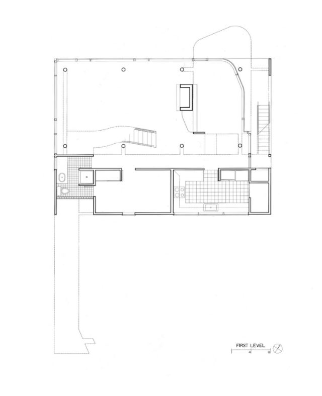
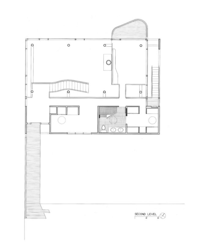
Floor Plan    
     
Description  

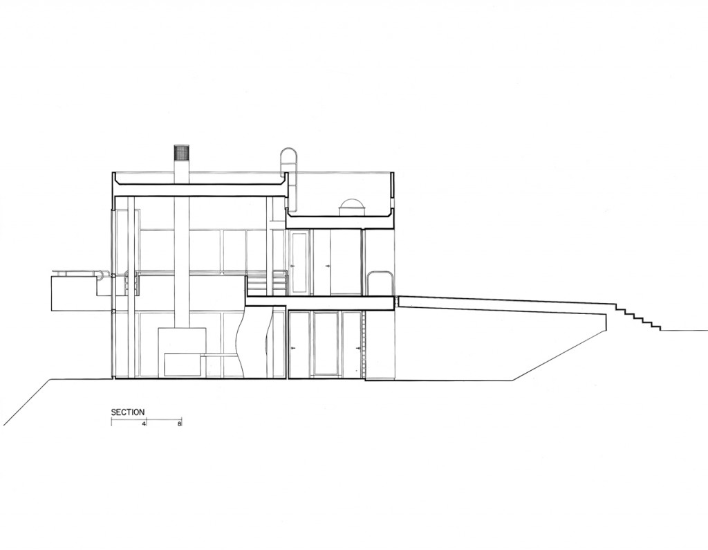
The Shamberg House is located adjacent to a traditional, shingled cottage, on a heavily wooded hillside with a sweeping view. The existing cottage remains a guesthouse, while the new building serves as a year-round family gathering place.

On the entry side, a bridge, which starts a half-story below grade level, emphasizes the tautness of the solid front. On axis with the entry is a balcony overlooking a two-story glazed living room and a deep view into the woods below the house. From this transitional space one can best appreciate the contrast between the house’s public and private zones: one articulated as solid, the other as void. The balcony faces onto a serpentine stair to the lower level. Curving past one of the structural columns, as if to avoid a collision, the stair weaves together the two discrete spatial parts.

To the right of the balcony, the entry-level plane of circulation continues along a corridor serving the spaces behind the front façade to an interior bridge leading to the owners’ bedroom, an open platform that is cantilevered over the living-room space. Movement through the bedroom culminates in an exterior balcony, read as a curvilinear solid pushing through the glass wall to the exterior, where it appears to balance on a piano-curved wall of glass. An exterior stair provides direct access to the outdoor pool.

As in earlier house designs, the formal potential of a decisive separation of public and private spaces is explored again, but with some significant variations. Vertically stacked rooms and corridors, fronting a living area oriented horizontally with 180-degree views of the landscape, physically define the private sector. In plan, the entry sequence and private spaces, (the bridge, master bedroom, balcony and corridor) are oriented towards the diagonal. The entry façade is viewed obliquely from the bridge; the cantilevered sleeping area is seen from the top of the recurved staircase, across the double-height interior.

Frontality and right angles, by contrast, determine the views and approaches in the lower public spaces. The mullions of the rear façade are shifted past the structural columns, a departure from preceding houses. This shift, in concert with the opposed grids of the upper and lower levels, creates a sensation of rotation within the tightly drawn box of the house and of narrowly averted collisions between structure and surface.

     
     
     
     
     
Photos and Plan