ATTENTION. The books are accessible only via the Tor Browser. Follow the guide HERE

 

 

 

 

 

OVERVIEW / PHOTOS ANS PLANS

 

 

Name   House in Palm Beach
     
Architects   MEIER, RICHARD
     
Date   1977 - 1979
     
Address   Palm Beach, USA
     
School    
     
Floor Plan    
     
Description  

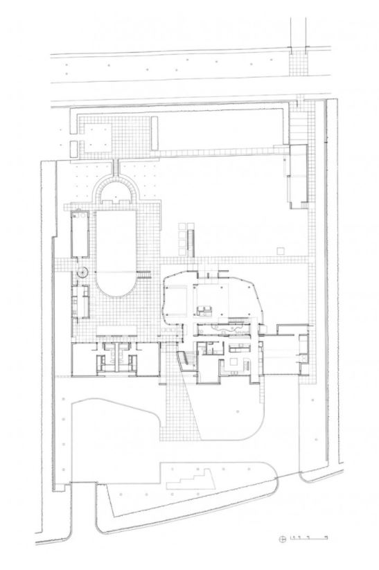
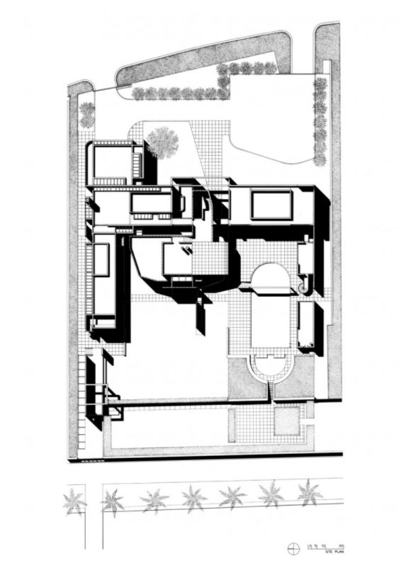
Located on a narrow, flat, side-walled site, this private residence has an open view of Lake Worth to the west. The parti is clearly organized to take advantage of its orientation. Within the front block to the right and left of the entry are the private spaces; to the right, the master bedroom suite above the ground-floor service areas; to the left, a guest wing with two bedrooms and baths on each floors. Behind this, facing the water, are the public areas, a pavilion for entertaining with a library above. The plan is an inversion of the expected sequence of spaces; one must penetrate the private zones on the street side in order to reach the public areas facing the view. This inversion serves to heighten the dramatic impact of the latter. The diagram of public and private is pulled apart decisively so that there is a very strong separation of the elements in both plan and section.

Thus, the private spaces are rectilinear; the public spaces, curvilinear. The separation is also clearly articulated in terms of materials. The private spaces are covered with an opaque material, stucco; the public spaces with reflective, enameled metal panels.

The rectilinear front block is set back from the street by an automobile forecourt. The minimally fenestrated front wall, with its compressed layers of cut-away planes, its extension from one side of the site to the other, and its recessed central entry, further affords privacy. Serving as a massive horizontal gate, this wall unifies the two private wings, the master and guest portions of the house. The master suite, entered through a solid, canopied doorway in the central recess, can be shut off from the guest wing if desired, while the guest wing has separate entries to each of the four units in the back.

     
     
     
     
     
Photos and Plan