ATTENTION. The books are accessible only via the Tor Browser. Follow the guide HERE

 

 

 

 

 

OVERVIEW / PHOTOS ANS PLANS

 

 

Name   Hartford Seminary
     
Architects   MEIER, RICHARD
     
Date   1978 - 1981
     
Address   Hartford, USA
     
School    
     
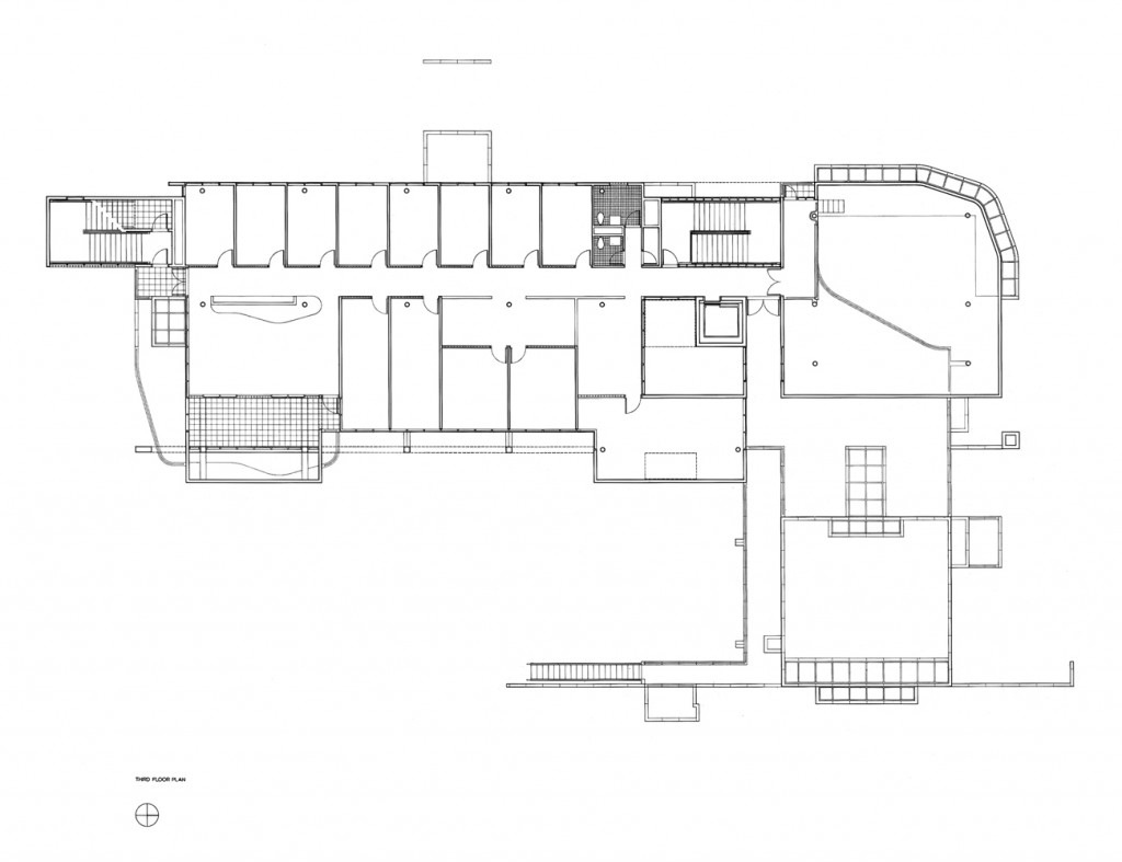
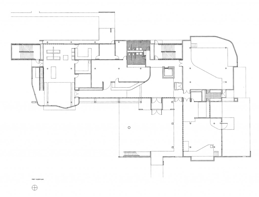
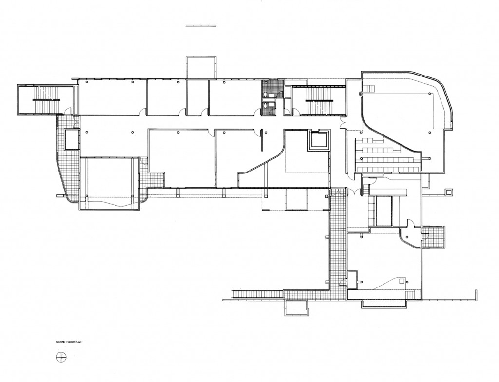
Floor Plan    
     
Description  

In 1972 the Hartford Seminary relinquished its role as a traditional residential divinity school for the Protestant ministry and established itself as an interdenominational theological center offering advanced degrees to clergy and laypersons, as well as research and consulting services and public policy programs. To accommodate these new functions, the seminary decided to sell its campus and build a single structure to house all its activities and project a new image of scholarship and service.

The building covers a total area of 27,000 square feet, including a large meeting room, a chapel, a library, a bookstore (all open to the public), classrooms and areas for faculty, as well as workrooms and offices. The corner site is flat, and the context is that of a residential suburban campus. Loosely knit blocks of Gothic Revival stone buildings that formerly housed the seminary face the site from across the street, and a mixture of neo-Tudor and neo-Colonial houses fills out the surrounding neighborhood.

The building’s concept addresses the seminary’s dual role as an introverted institution devoted to contemplation and scholarship, and an extroverted one engaged in fostering religious understanding in the world at large. It consists of a partially cloistered, inward-directed organization of spaces, a place for peaceful gathering and quiet study. At the same time, it is intended to be the center of a larger domain that reaches out to the public, informs it, and invites it to take part. As such, the building’s only organizational hierarchy is the architectural distinction made between public and private areas of activity: public spaces dominate private ones.

     
     
     
     
     
Photos and Plan