ATTENTION. The books are accessible only via the Tor Browser. Follow the guide HERE

 

 

 

 

 

OVERVIEW / PHOTOS ANS PLANS

 

 

Name   Grotta Residence
     
Architects   MEIER, RICHARD
     
Date   1984 - 1989
     
Address   Harding Township, USA
     
School    
     
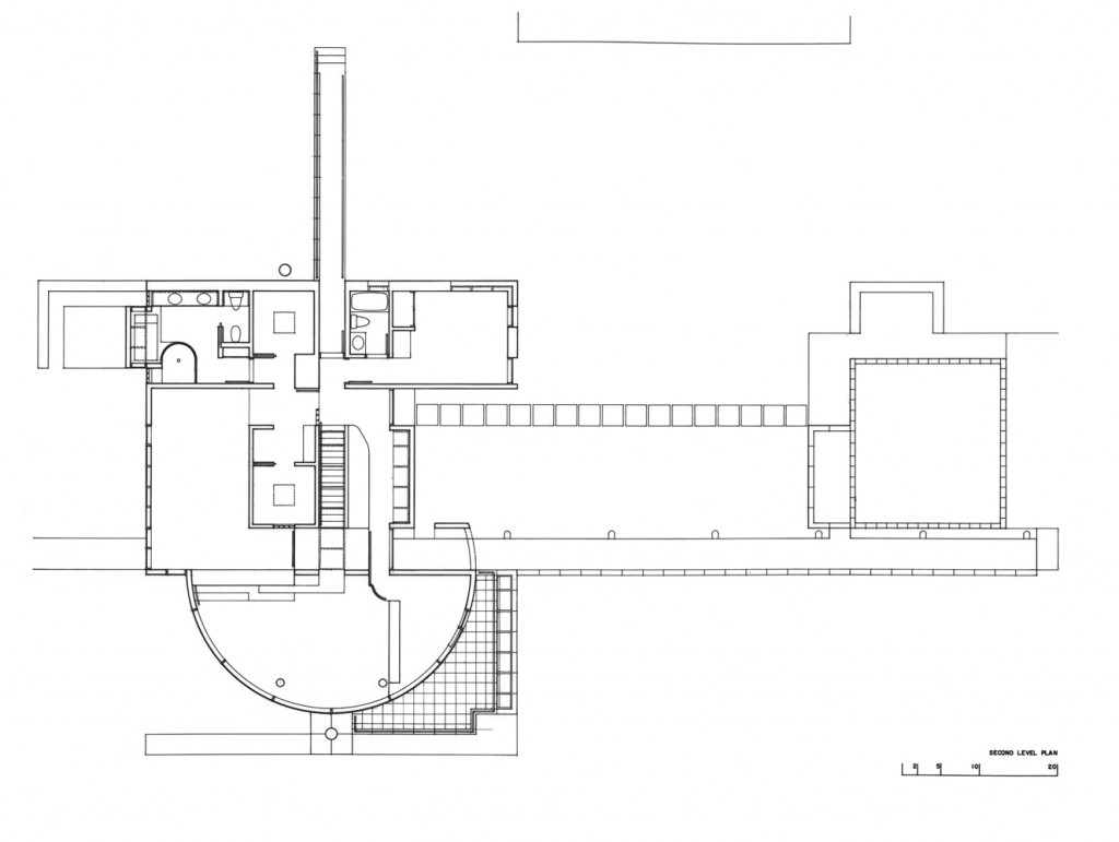
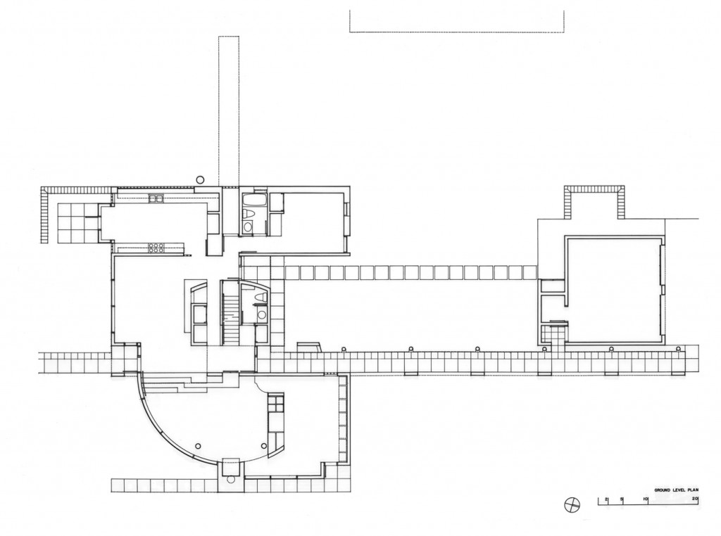
Floor Plan    
     
Description  

Sited near the top of a seven-acre sloped clearing framed by forest, this house features public spaces with spectacular views to the landscape while the more private rooms look to the insular woods at rear. Two perpendicular axes extend from the center of the house to distant locations, thereby extending the interior volumes into the landscape and according the house a locus within an otherwise ill-defined site.

Designed for a couple that collects native crafts, the house is structured around a central cylindrical double-height space, which is alternately partially absorbed by and erodes the orthogonal corpus to which it is attached. The overlaps and gaps in this geometric relationship are manifest in multiple levels, which further define the living areas and places for the exhibit of objects while maintaining an open, expansive flow of space.

A covered passage connects the garage to the house, bisecting it in plan and shearing it in section. Immediately upon entry, a perpendicular sky-lit staircase connecting the two floors establishes a countervailing axis that leads to a passerelle outside to the upper garden. The house is thus anchored to its site; and the site is, in turn, made a place of character by such a strong, geometric intervention.

     
     
     
     
     
Photos and Plan