ATTENTION. The books are accessible only via the Tor Browser. Follow the guide HERE

 

 

 

 

 

OVERVIEW / PHOTOS ANS PLANS

 

 

Name   KNP Headquarters
     
Architects   MEIER, RICHARD
     
Date   1987 - 1992
     
Address   Hilversum, The Netherlands
     
School    
     
Floor Plan    
     
Description  

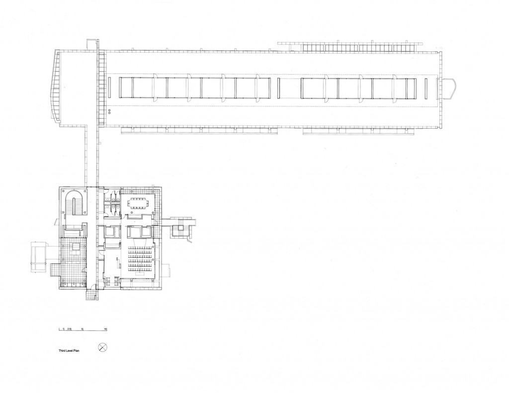
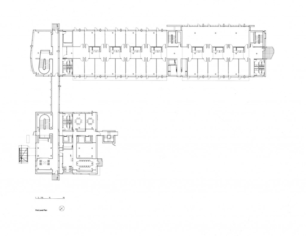
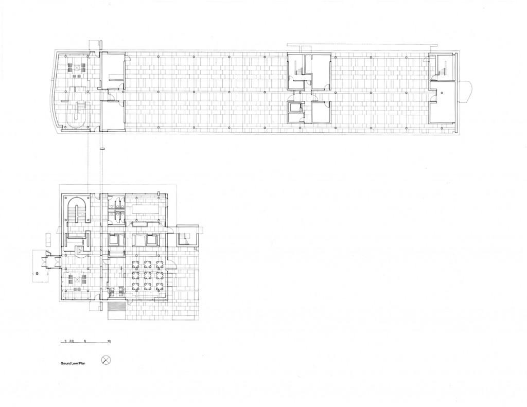
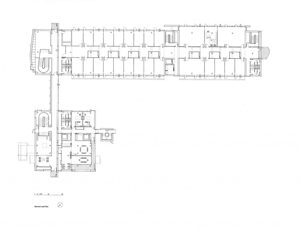
This headquarters for a prominent international paper company is set in a clearing in a densely wooded area. The building consists of two interconnected structures: a four-story cubic reception building and a two-story office slab elevated on pilotis. The former provides dining facilities on the lower two floors, with general staff convening in a double-height restaurant at grade and executives and visitors in mezzanine dining rooms above. These private dining spaces overlook the main space and open to terraces facing southwest and southeast. Guest offices and meeting rooms are on the second floor, with a 60-seat lecture hall and conference room above.

The building is organized volumetrically around two intersecting corridors: one runs northwest-southeast and is serviced directly by the elevator/mechanical core; the other, running northeast-southwest, affords access to offices on either side.

The two-story elevated office slab has two main entrances: one at the northeast end with an honorific stair, echoing a similar feature in the reception building, and another at midpoint equipped with an independent elevator core serving the executive offices in the southwest half of the slab. Both the executive and the staff offices are served from top-lit, double-height, double-loaded corridors with continuous access on one side and passerelles to office clusters on the other. The voids between passerelles illuminate lower corridors and unify the internal space.

Sophisticated in its exterior treatment, the office slab sets up a counterpoint between the main structure of freestanding cylindrical columns and the projecting concrete blades that maintain structural continuity in the spandrel wall. Horizontal strip windows plus horizontal sun screens add further syncopation to the façade.

     
     
     
     
     
Photos and Plan