ATTENTION. The books are accessible only via the Tor Browser. Follow the guide HERE

 

 

 

 

 

OVERVIEW / PHOTOS ANS PLANS

 

 

Name   Weishaupt Forum
     
Architects   MEIER, RICHARD
     
Date   1989 - 1993
     
Address   Schwendi, Germany
     
School    
     
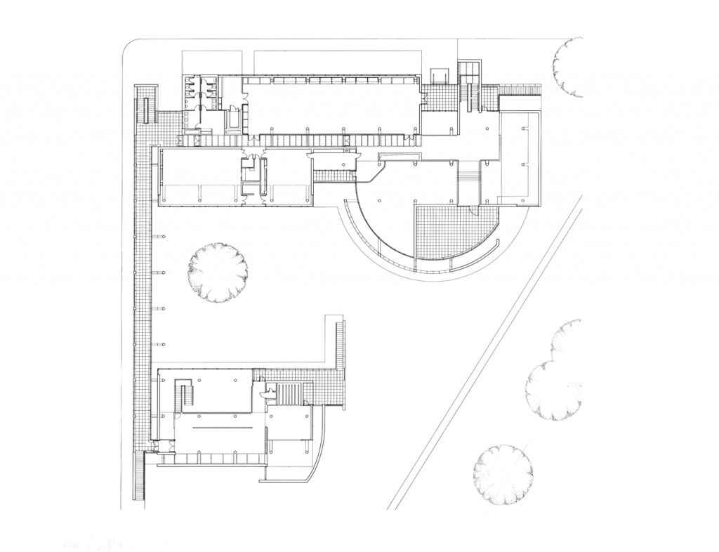
Floor Plan    
     
Description  

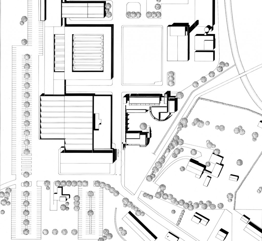
Set in Schwabian countryside on the edge of a small town, this complex is the representational building for a small industrial plant. The assembly was conceived as a communal and public reception facility, which, running parallel to the existing administration building, creates a new controlled street leading from the main entry to the interior of the plant. The new complex is made up of two principal structures: a cafeteria and a training center housed in a single-bar building, and a portico building opposite the existing offices.

The portico building accommodates a product display area and a 50-seat orientation space at grade, with a gallery for the industrialist’s collection of late-twentieth-century art above. This structure is linked to the cafeteria/training wing by a loggia/passerelle that comprises the third side of an inner grass-covered court.

The covered causeway provides protection from the elements as employees come and go to the factory. It also affords access to the two guest dining rooms and the double-height, 260-seat staff cafeteria. The latter houses the main stair leading to two classrooms and a teaching laboratory on the floor above. The complex may be entered at both levels via dog-leg stairs at the external corners.

The inner court is framed by two first-floor terraces, one flanking the semicircular screen wall of the cafeteria and the other opening off the art gallery. These terraces impart an intimate feeling to the court, which is bounded on one side by the loggia and on the other by a stream that separates the forum from the owner’s private residence to the southwest, at the extreme corner of the site.

     
     
     
     
     
Photos and Plan