ATTENTION. The books are accessible only via the Tor Browser. Follow the guide HERE

 

 

 

 

 

OVERVIEW / PHOTOS ANS PLANS

 

 

Name   Rachofsky House
     
Architects   MEIER, RICHARD
     
Date   1991 - 1996
     
Address   Dallas, USA
     
School    
     
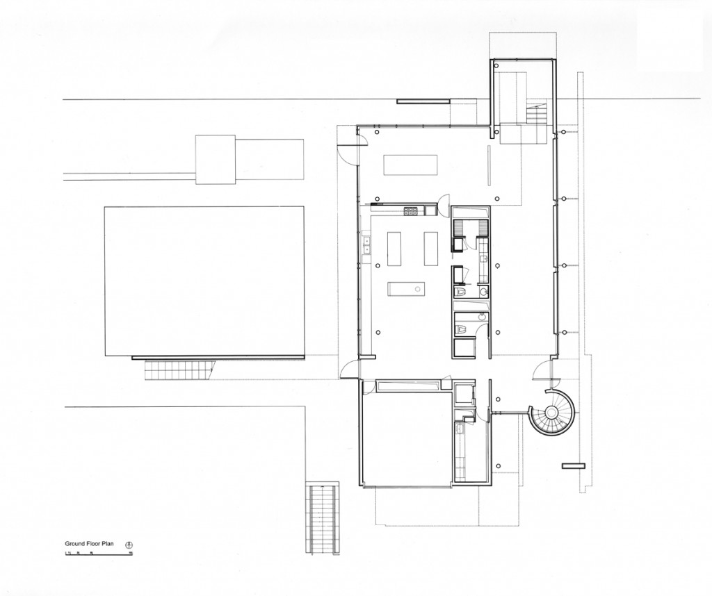
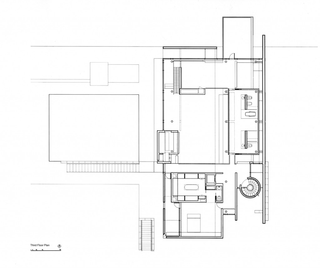
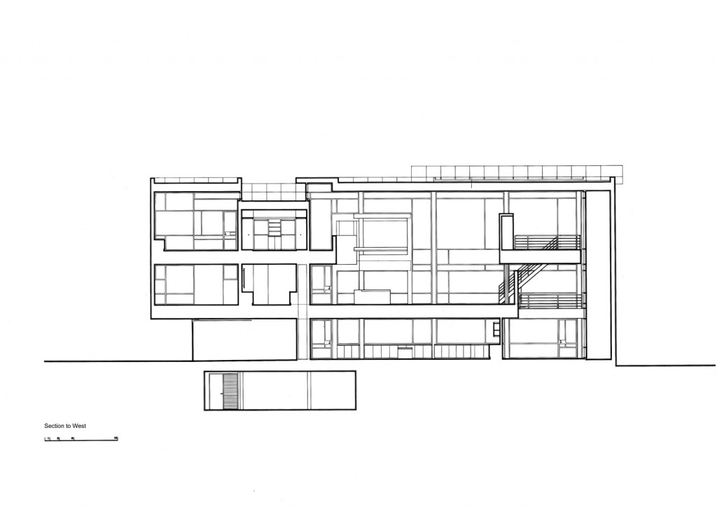
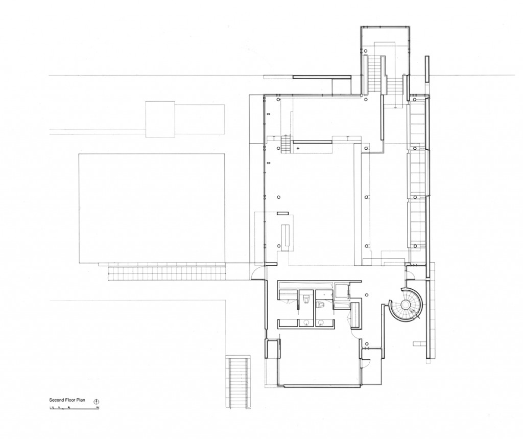
Floor Plan    
     
Description  

Set in a suburban landscape, this house/private museum is anchored to the ground by a podium faced in black granite that extends both in front of and behind the main body of the building.

The white form of the house hovers on pilotis above the podium like an opaque plane, pierced by a number of discrete openings. A succession of spatial layers recedes from this taut surface to accommodate the house’s principal volumes. The metal-faced front elevation that shields the living volume gives way on the north and west elevations to taut curtain walls that, together with the opaque front, inflect the interior layered space toward a small body of water to the southwest. Two sheets of water-a reflecting pool and a swimming pool-penetrate the podium at the rear of the house. The swimming pool, plus a cubic pool house and a low wall, effectively terminate the sitework at the western end.

Two separate stairs provide access to the three floors of the house: an enclosed spiral stair to the south and an open switchback stair to the north. This contrast between private and public circulation is echoed consistently in the organization of the volumes within.

Thus the public stair opening off the gallery foyer leads directly to the double-height living room on the first floor, while the cylindrical private stair ascends to the library on the second floor and the master suite on the floor above. Two separate volumes on the third floor, a suspended study and an exercise room, afford views of the living volume and the garden. All glass walls that are exposed to low-angle western light are protected by electrically operated shades.

Stairs giving access from the swimming pool and to the roof terrace, along with a two-car garage under the guest suite on the south side of the house, complete the symmetrical repertoire. The exterior of the house is clad in white-enameled aluminum panels with aluminum fenestration and insulated glazing.

     
     
     
     
     
Photos and Plan