ATTENTION. The books are accessible only via the Tor Browser. Follow the guide HERE

 

 

 

 

 

OVERVIEW / PHOTOS ANS PLANS

 

 

Name   United States Courthouse
     
Architects   MEIER, RICHARD
     
Date   1994-2000
     
Address   Phoenix, USA
     
School    
     
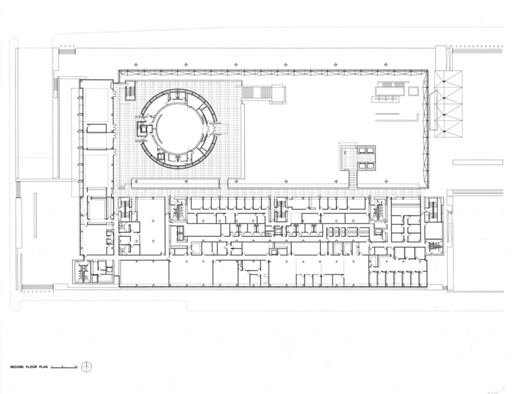
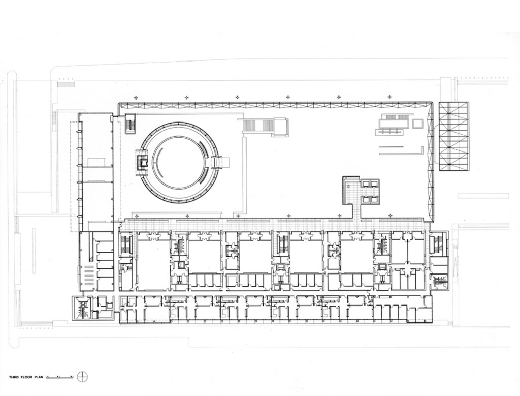
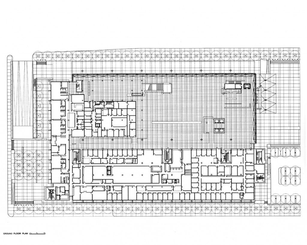
Floor Plan    
     
Description  

The courthouse is a singular civic building type that represents the democratic values of the United States Constitution. Despite today’s dematerialized etymology, it is still important to provide a fitting setting for the courthouse as a public institution, and, at the same time, to establish appropriate spatial relationships between the judiciary, the jury, and the public.

Located in downtown Phoenix, this building has been designed as a monumental six-story steel and glass atrium, backed by an L-shaped block faced in masonry. It houses nineteen district courts, four magistrates courts and a wide range of support facilities, including judges’ chambers, a library, a press room, and a space for child care. A large cafeteria, on the second floor at the western end of the atrium, overlooks a narrow garden enclosed by a wall.

The 350-foot by 150-foot, glazed atrium is treated as an internal civic space, which houses the cylindrical glazed form of the special proceedings court, itself a cylindrical room finished in wood veneer. Conceived as a ceremonial space, the courtroom is capped by a shallow, inverted dome of translucent glass, designed by the American glass artist/fabricator James Carpenter.

This monumental drum, with its attendant atrium. is flanked on the south by six floors of offices and courtrooms with an open gallery overlooking the internal civic space. Light plays a critical role in the articulation of this volume, which is naturally lit from above and the sides during the day and emits a radiant glow of artificial light at night.

Passively cooled by natural convection, the atrium is an efficient space that is comfortable for public gatherings. The technology of adiabatic cooling – through evaporation rather than heat exchange – is used to maintain a lower air temperature without a significant expenditure of energy.

     
     
     
     
     
Photos and Plan