ATTENTION. The books are accessible only via the Tor Browser. Follow the guide HERE

 

 

 

 

 

OVERVIEW / PHOTOS ANS PLANS

 

 

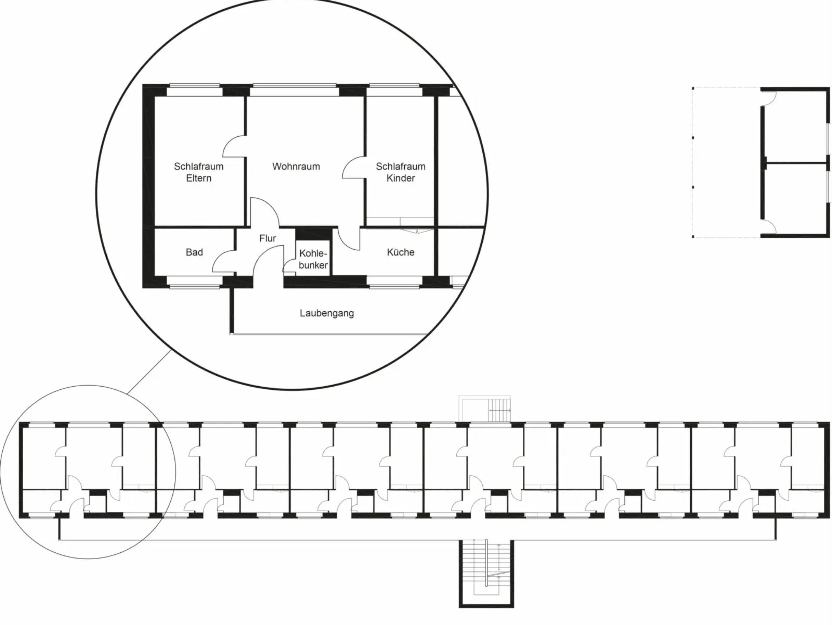
Name   Dessau-Torten Housing Development (Houses with Balcony Access)
     
Architects   MEYER, HANNES
     
Date   1930
     
Address   Dessau, Germany
     
School    
     
Floor Plan    
     
Description    
     
     
     
     
     
Photos and Plan