|
| Name |
|
McCORMICK HOUSE |
| |
|
|
| Architects |
|
MIES VAN DER ROHE, LUDWIG |
| |
|
|
| Date |
|
1951-1952 |
| |
|
|
| Address |
|
Elmhurst, Illinois, USA |
| |
|
|
| School |
|
|
| |
|
|
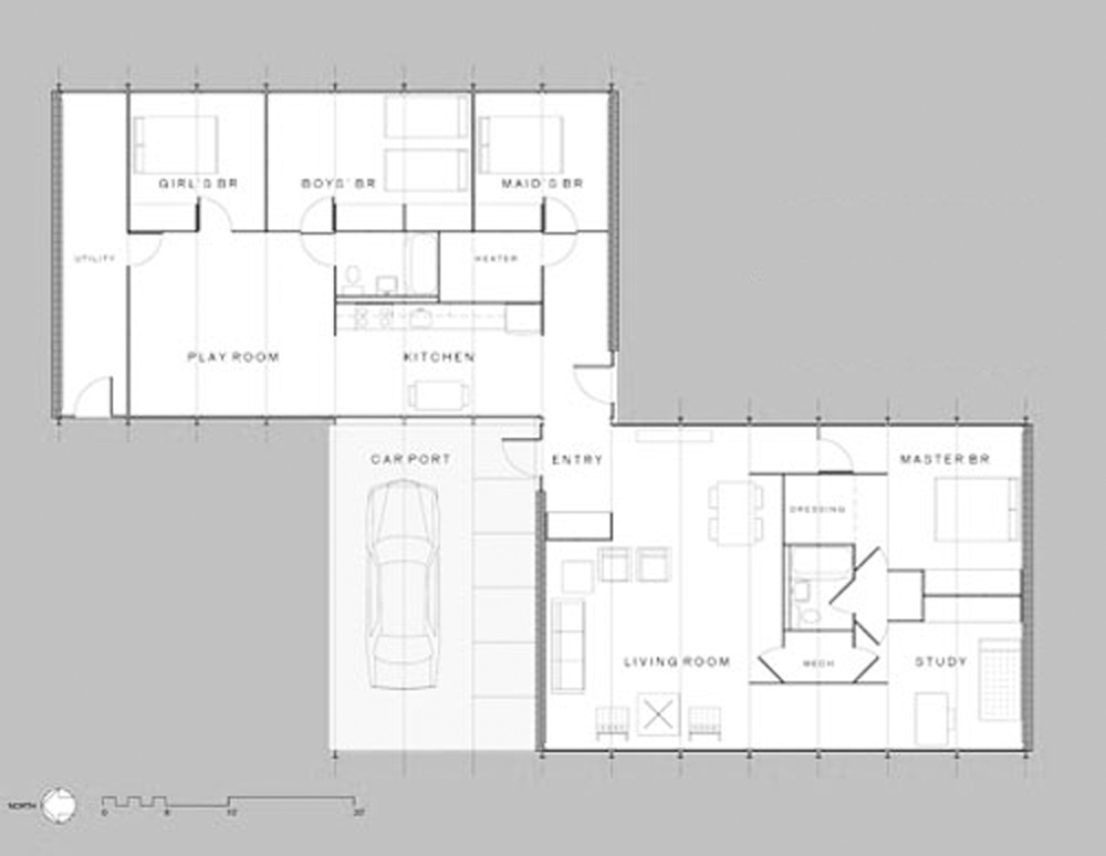
| Floor Plan |
|
|
| |
|
|
| Description |
|
Robert McCormick, one of the project developers of the Lake Shore Drive Apartments, commissioned Mies to build one storey of the towers at ground level for use as a private residence. The prefabricated frame construction was delivered by lorry and erected in two days. Although the floor plan deviates from that of the apartments in Chicago, the detailing of the façades is more or less identical. Visitors enter the building beneath a covered entrance area and find themselves immediately in the living and dining room, through which one reaches the study. The second part of the building contains the kitchen and children’s room. The building, which McCormick used as a weekend house, was dismantled in 1994 and reerected in the grounds of the neighbouring Elmhurst Art Museum. While the steel construction was transferred intact, the building was originally conceived in conjunction with a parklike garden designed by the landscape architect Alfred Caldwell, and this connection no longer exists. The interior fittings were likewise lost during the dismantling of the building. |
| |
|
|
| Photos and Plan |
|
|
| |
|
 |
| |
|
|
| |
|
 |
| |
|
|
| |
|
 |
| |
|
|
| |
|
 |
| |
|
|
| |
|
 |
| |
|
|
| |
|
 |
| |
|
|
| |
|
 |
| |
|
|
| |
|
 |
| |
|
|
| |
|
 |
| |
|
|
| |
|
 |
| |
|
|
| |
|
 |
| |
|
|
| |
|
 |
| |
|
|
| |
|
 |
| |
|
|
| |
|
 |
| |
|
|
| |
|
 |
| |
|
|
| |
|
 |
| |
|
|
| |
|
 |
| |
|
|
|