ATTENTION. The books are accessible only via the Tor Browser. Follow the guide HERE

 

 

 

 

 

OVERVIEW / PHOTOS ANS PLANS

 

 

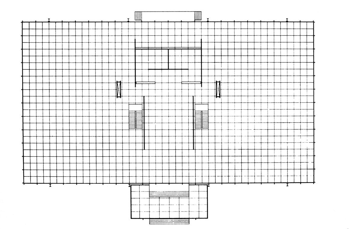
Name   S.R. Crown Hall
     
Architects   MIES VAN DER ROHE
     
Date   1956
     
Address   Illinois Institute of Technology, Chicago, USA
     
School    
     
Floor Plan   SQ.M.
     
Description    
     
     
     
     
     
Photos and Plan