ATTENTION. The books are accessible only via the Tor Browser. Follow the guide HERE

 

 

 

 

 

OVERVIEW / PHOTOS ANS PLANS

 

 

Name   Neue Nationalgalerie
     
Architects   MIES VAN DER ROHE, LUDWIG
     
Date   1968
     
Address   Potsdamer Straße 50, 10785 , Berlin, Germany
     
School    
     
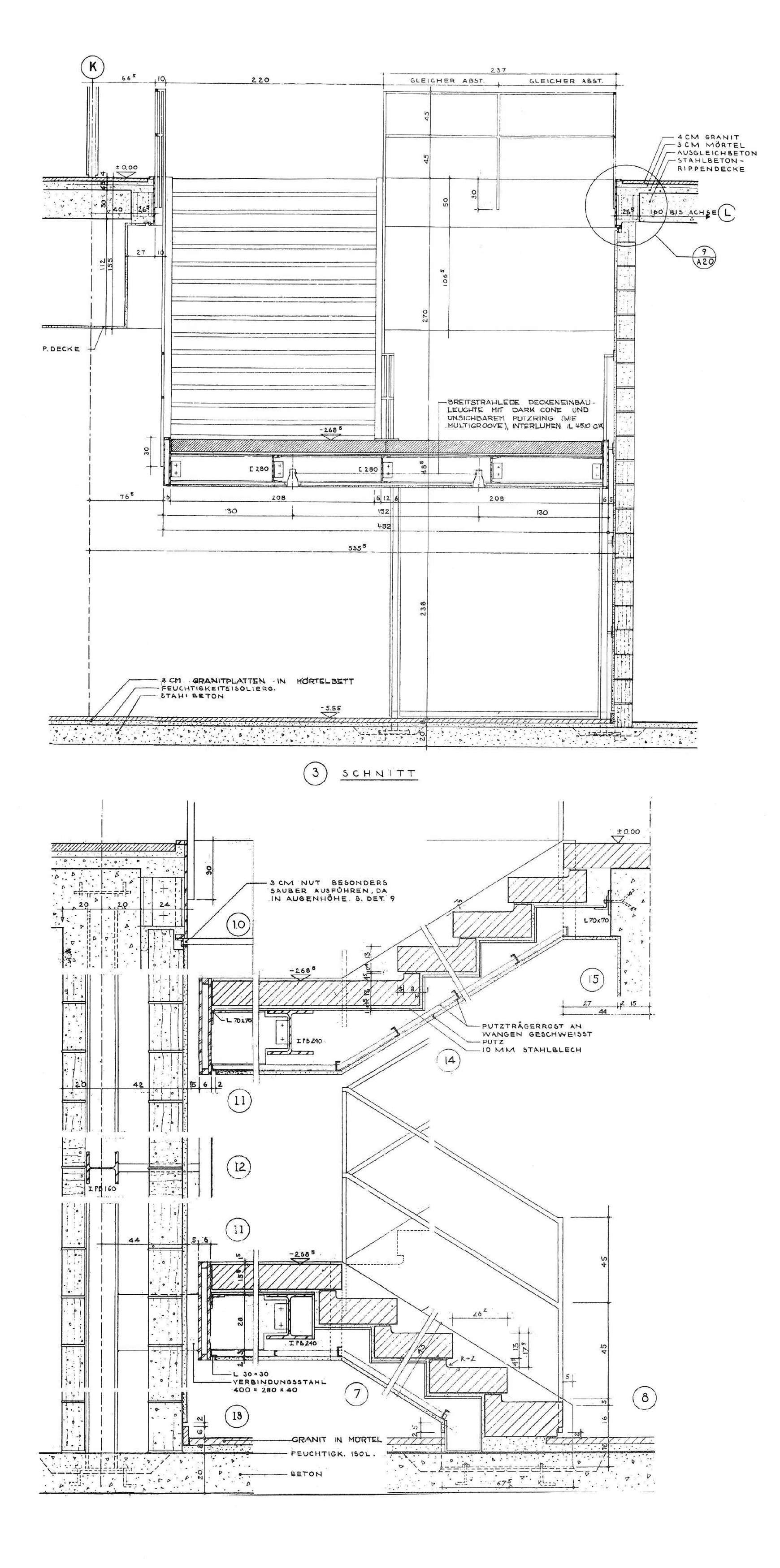
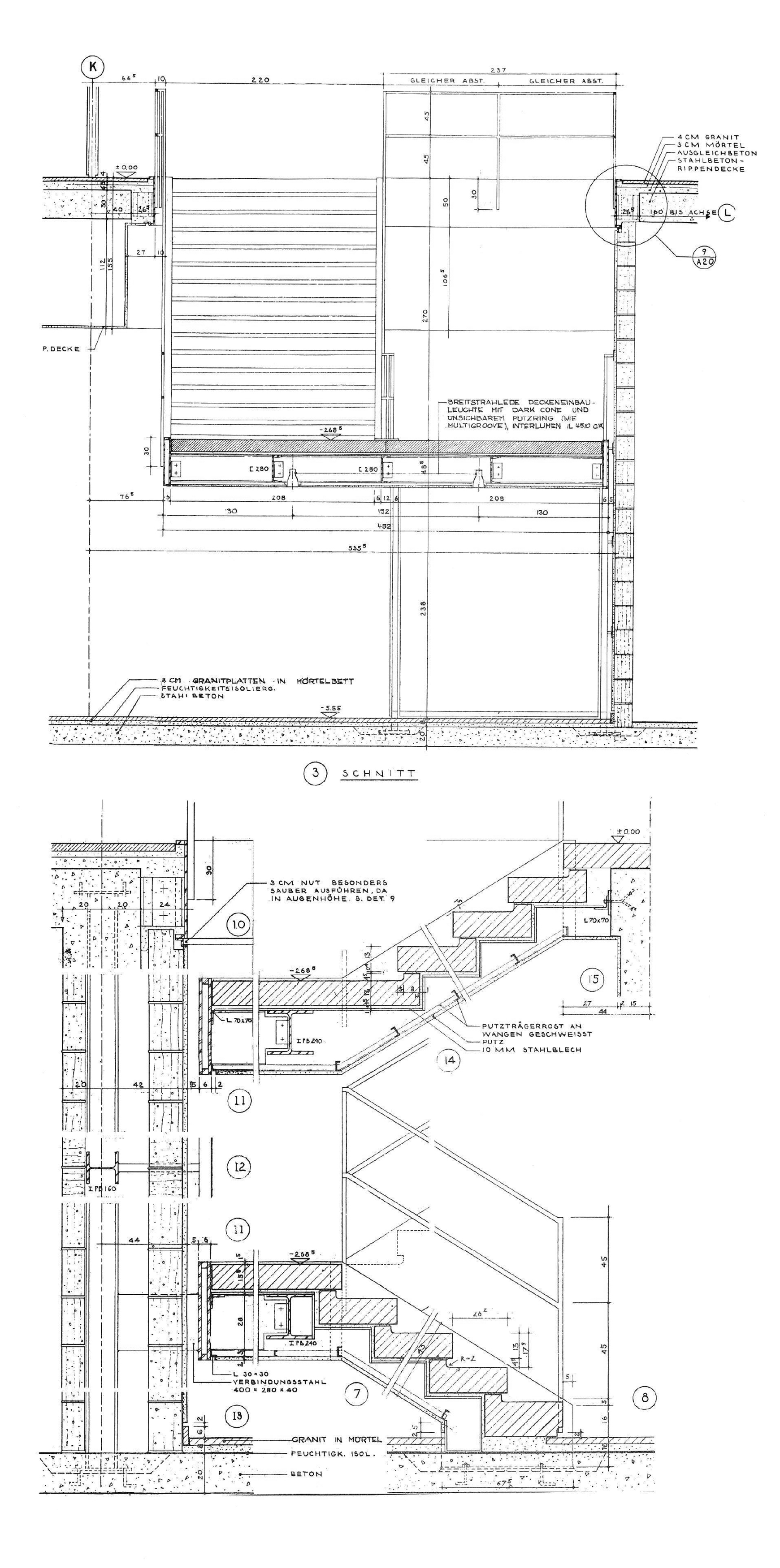
Floor Plan    
     
Description    
   

The new National Gallery was designed by Mies van der Rohe in Chicago, but it is all Berlin. He had been out of the city thirty years when he came to design it, but he had conserved in Chicago the essential professional ethic of the society that had been destroyed in its native town.

The Museum is grave, rational and disciplined, imbued with the public decorum and classicism of the Germany of Goethe, Beethoven, Schiller, Bach und so wieder. And the Berlin of Karl Friedrich Schinkel, founding father of that great municipal tradition. Yet it is ultimately less backward-looking, less sentimental than the Philharmonie. It’s a bare, spare statement in steel and glass about the definition of a usable fragment of universal space. It may evoke conscious echoes of Schinkel's Altes Museum of 1824, but the long unsupported cantilever corners of the roof beyond the two skinny columns on each side have nothing to do with any past tradition in museum design. In fact, Mies so extravagantly flouted that tradition in creating this glass box that he has been accused of un-functional irresponsibility as much as Scharoun at the Philharmonie. How can one exhibit works of art in an environment that is clear glass all around and without a single solid wall within? Depends what you mean by a work of art - small cabinet pictures probably would get clobbered, but large works of modern sculpture, Op and Pop art, seem to hrive in it. Small cabinet works— and much other good stuff - is well looked after in the almost windowless galleries buried in the hundred-metre-square podium on which the visible pavilion stands.

This still leaves some viewers feeling uncomfortably that Mies had indulged himself above ground, and buried those functions in which he wasn’t interested. Yet, in Berlin, that looks an insensitive judgement. This is a formal statement — a mal (as in Denkmel) or monument - made also in thanksgiving to a city that understands formal statements, even if it has received few of equal gravity and civility in the last quarter-century. Addressing himself appropriately to an unrepeatable situation, Mies made s gesture that was unrepeatably traditional and modern at once.

So, in its own way, does Scharoun’s Philharmonie. No view of modern architecture in the Age of the Masters can be complete if it cannot embrace both the classical and the romantic, the plain and the devious, the fancy and the naked. All these, in the service of function, are within the range of modern architectural possibilities. All you need is nerve, and those old Masters had it!

 

Banham R. Age of the Masters: A Personal View of Modern Architecture. Harper & Row., 1975. P. 164-167.
     
     
Photos and Plan