ATTENTION. The books are accessible only via the Tor Browser. Follow the guide HERE

 

 

 

 

 

OVERVIEW / PHOTOS ANS PLANS

 

 

Name   Tange's home
     
Architects   TANGE, KENZO
     
Date   1953
     
Address   TOKYO, JAPAN
     
School    
     
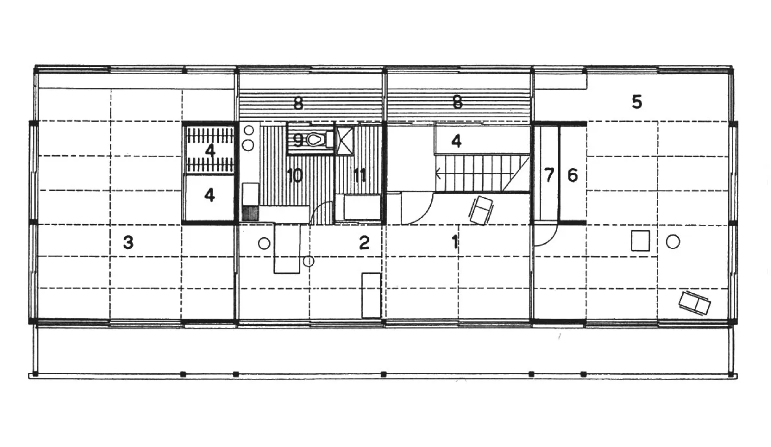
Floor Plan    
     
Description    
     
     
     
     
     
Photos and Plan