ATTENTION. The books are accessible only via the Tor Browser. Follow the guide HERE

 

 

 

 

 

OVERVIEW / PHOTOS ANS PLANS

 

 

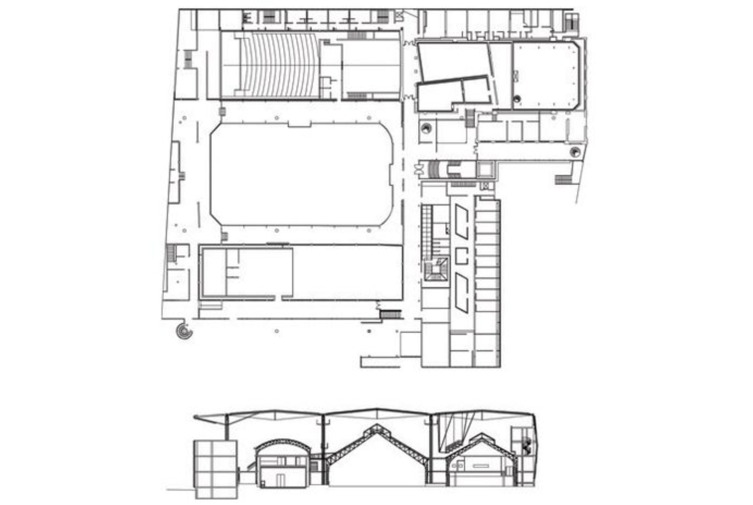
Name   Le Fresnoy National Center for the Contemporary Arts
     
Architects   TSCHUMI, BERNARD
     
Date   1991-1997
     
Address   Tourcoing, France
     
School    
     
Floor Plan    
     
Description    
     
     
     
     
     
Photos and Plan