ATTENTION. The books are accessible only via the Tor Browser. Follow the guide HERE

 

 

 

 

 

 

 

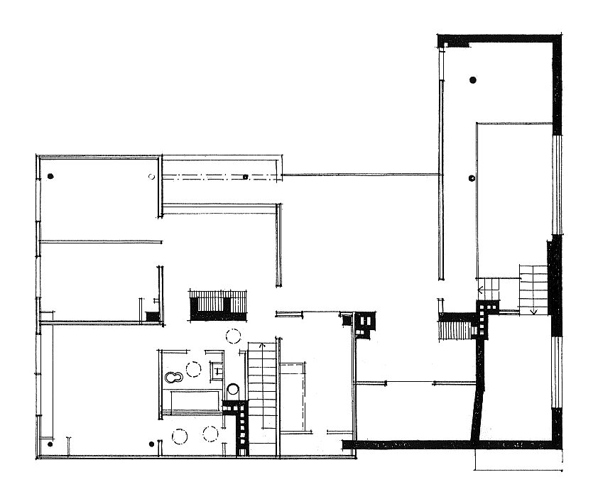
Name   THE AALTO HOUSE
     
Architects   ALVAR  AALTO
     
Date   1935-1936
     
Address   Riihitie 20, 00330 Helsinki, Finland
     
School    
     
Floor Area    
     
Description  

Originally planned as a private house and office, it now serves, after completion of the newly added office,
only as residence and private studio of Aalto. Materials: Frame of tubular steel filled with concrete. Exterior walls of whitewashed brick. The living areas of the house have walls of wood, the roofs have only a very slight slope, the terrace on the upper Ievel serves as a roof garden between the dwelling area and the studio area .

     
     
     
     
     
     
Photos and Plan