HOME
ARCHITECTS
STYLES
OBJECTS
LIBRARY
DONATE
Anna’s
Archive
Library
Genesis
Sci
hub
Z
Library
ATTENTION. The books are accessible only via
the Tor Browser
. Follow the guide
HERE
.
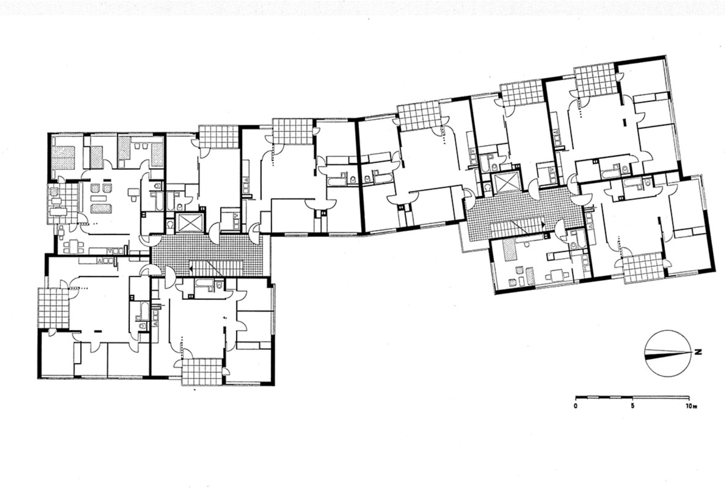
OVERVIEW /
PHOTOS ANS PLANS
Name
Hansaviertel House
Architects
AALTO, ALVAR
Date
1957
Address
Berlin, Germany
School
Floor Plan
Description
Photos and Plan