ATTENTION. The books are accessible only via the Tor Browser. Follow the guide HERE

 

 

 

 

 

OVERVIEW / PHOTOS ANS PLANS

 

 

Name   De Young Museum
     
Architects  

HERZOG & DE MEURON

     
Date   2002-2005
     
Address   Golden Gate Park, San Francisco, USA
     
School    
     
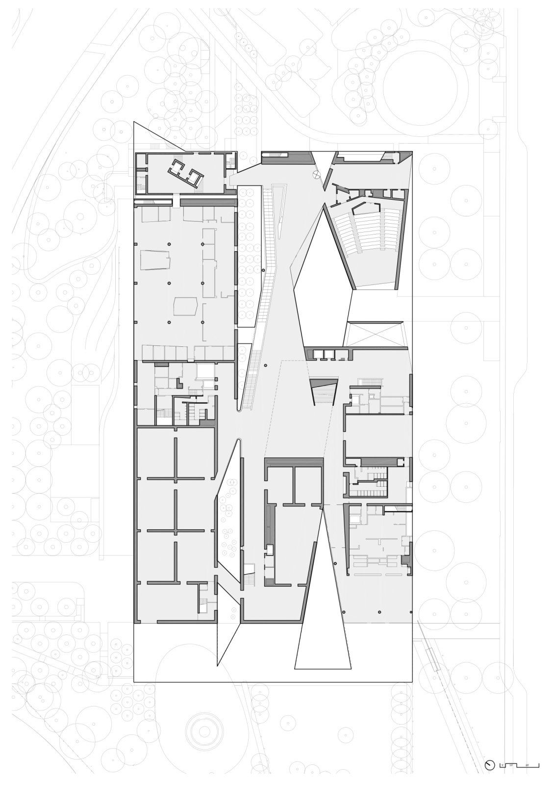
Floor Plan   27000 SQ.M.
     
Description  

The M.H. de Young Memorial Museum houses numerous collections, representing a variety of cultures from all over the world. The works of art in these collections go from the present day all the way back to the beginnings of human history. The museum is therefore not a homotopical site, defined by a homogeneous, self-contained approach to art, but rather a heterotypical site that is open and receptive to the artistic diversity of our planet.

The architecture of the new building seeks to communicate this diversity; it is an embodiment of the open-ended concept of art fostered by the museum. It expresses the distinctiveness of different cultures and, at the same time, it is a place of common ground, where diversity meets and intersects, where otherwise hidden kinships between divergent cultural forms become visible and tangible.

Innovative architecture alone does not suffice to do justice to these requirements; the curatorial concept must be equally innovative. Conversations with curators and visitors at an early stage allow us to incorporate ideas on architecture, urban planning, landscaping, and curating as coequal components of a dialogue-oriented planning process. In curatorial terms, we tried to provide a variety of exhibiting conditions, resulting in a kind of typology of exhibition spaces. We wanted to define different types of exhibition spaces that reflect the differences in background and evolution of the works of art.

We worked on the assumption of two main groupings: works created in the context of our Western understanding of art and those created as part of a superior cultural or religious system.

Correspondingly, the new de Young Museum offers classically proportioned rooms or galleries with fixed walls and overhead lighting. These are ideal for viewing and studying the paintings, sculptures, and furniture of the 19th and 20th century collections of American art. Other galleries with a freer, more open arrangement and primarily artificial illumination are intended for objects from Central and South America, Africa, and Oceania. Closed spaces are scattered in between, like fixed stars accentuating the visitor’s tour of the museum.

In exploring possible designs for the new museum, we originally came up with the idea of separate buildings, like pavilions, placed throughout the park, each housing a different collection and giving expression to the diversity of cultures. It gradually became clear that it would be more meaningful to house all the components under one roof, in one interrelated, but varied architectural context. We thought of a kind of organism with several limbs or extensions, like the fingers of a hand. We arranged the building in three parallel bands (or fingers) so that the park fills the spaces in between and reaches all the way into the heart of the new building where it forms inner courtyards. Nature, trees, plants, and water, in various forms, are an integral part of the building.The three parallel elements do not lay side by side like detached, abstract art containers but are interconnected and interrelated so that viewers experience in space the interfaces and areas of friction among the cultures represented at the de Young Museum. The architecture of the new museum is not narrative; it is not a romantic interpretation of encounters between cultures; nor is it an abstract space for the storage of art objects; the architecture intends to visibly demonstrate and foster our awareness of the coexistence and equality of cultures.

The contacts and switches between the sections of the new museum can be seen as specific places within the greater organism as a whole. At the same time, they are places that join and separate – from inside to outside and back again.

The tripartite structure of the buildings that rub against each other like continental shelves makes it possible for the Golden Gate Park to penetrate the museum. This is one architectural strategy: to make the architecture of the new building permeable, open, and inviting for the people of San Francisco. For this reason much of the first floor is non-ticketed. The entire lobby, the main court, the restaurant, the museum store, and the children’s gallery are open to park visitors free of charge and, at the top of the tower, a panorama deck affords a view of the park and the city.

A second architectural strategy involves the large roof, which expresses the collective gesture of people gathering together. It projects all the way out to the Japanese Tea Garden and provides a pleasant outdoor area regardless of rain or shine. The roof is conceived as a filigreed structure that casts intricate patterns of light and shadow on the ground.

A third architectural element, the Education Tower, is a clearly identifiable landmark that looks out on the nearby JFK drive and the city. Given the location and the placement of the museum building and the concourse, the figure of the tower takes a geometrical stand in relation to the strict rectangular grid of the city. The Education Tower is literally the hinge between museum and city. It affords a view, an overview, and insight into the various cultures of this world at this select location in Golden Gate Park of San Francisco.

     
     
     
     
     
Photos and Plan