ATTENTION. The books are accessible only via the Tor Browser. Follow the guide HERE

 

 

 

 

 

OVERVIEW / PHOTOS ANS PLANS

 

 

Name   Tate Modern
     
Architects   HERZOG & DE MEURON
     
Date   2005
     
Address   Bankside, London, UK, SE1 9TG
     
School    
     
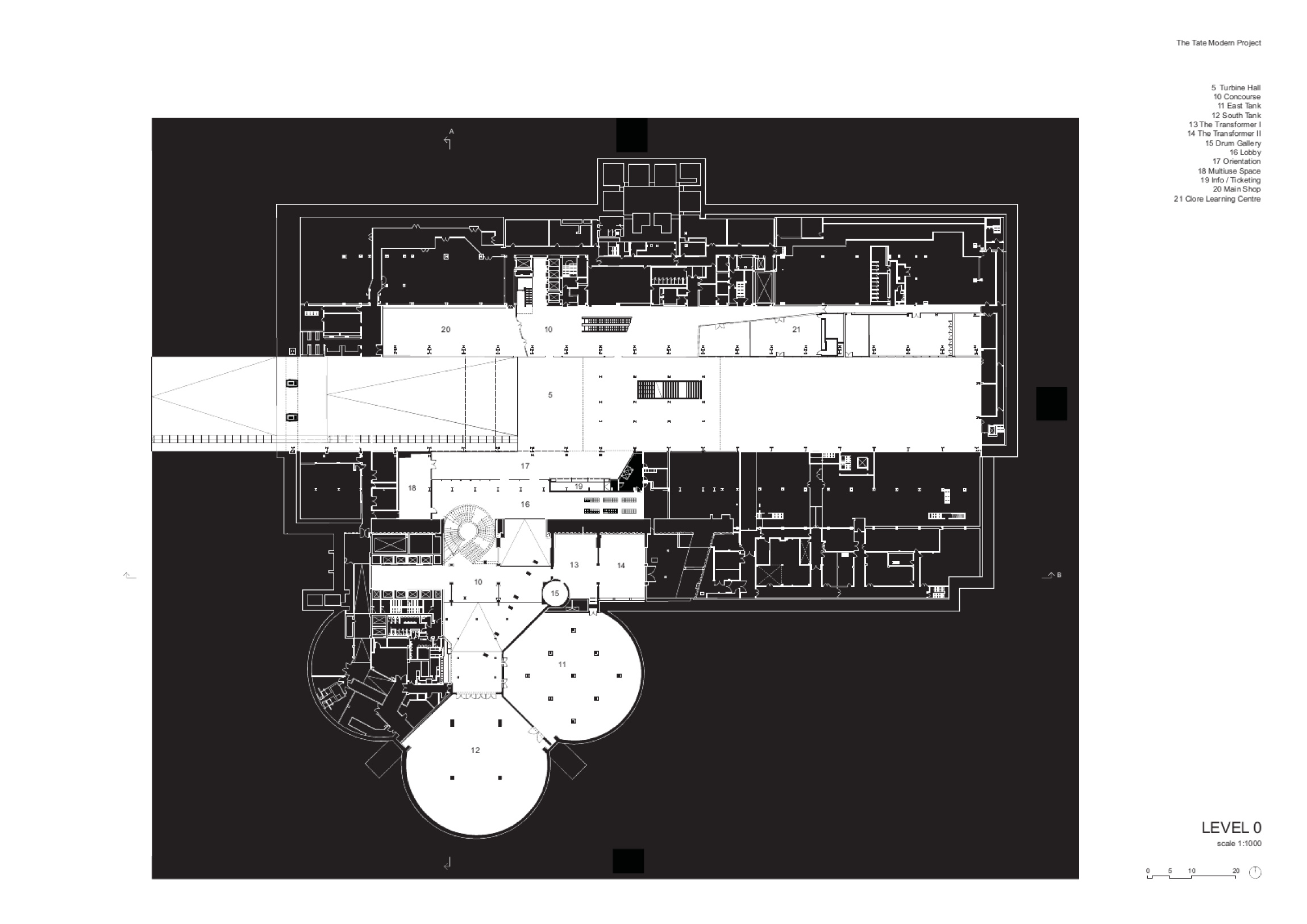
Floor Plan    
     
Description  

The Tate Gallery bought the former Bankside power station so that it could extend its exhibition capacity; the building was designed by Giles Gilbert Scott between 1947 and 1963. The massive brick structure on the Thames is an urban counterpart to St. Paul's Cathedral; its striking central chimney on the façade is almost as high as the cathedral's dome. Despite its tangible physical presence the power station was hemmed in by the surrounding buildings and inaccessible to the public. Herzog & de Meuron took these two features as the starting-point for their design. The surrounding buildings were pulled down, and a park (designed by the landscape architects Kienast Vogel Partner of Zurich and Berne) opens up the bank of the Thames and the area immediately around the building to the public. The monumental quality of the building is emphasized on the outside by a two-storey "light strip" running the whole length of the brick building and adding an immaterial- looking horizontal as the arm of a cross to the chimney, which shoots 118 m up into the sky. Inside, Herzog & de Meuron exploit the full height of the building. The entire interior has been removed, down to the outside walls and the rear layer of the structure, which is still used by the electricity company as a substation. The central turbine hall, which extends over the full length of the building, has been largely excavated so that its full height of 35 m can be used as a hall-like forum. It has entrances at all four points of the compass, and develops its own urban topography, which is also intended to accommodate art exhibitions and film shows. A ramp at the main entrance on the west side will take the anticipated two million visitors per year down into this hall. On the left, in the former boiler-house, are three floors containing 10,000 m2 of exhibition space, compactly stacked. On the right there is access to spaces with an art gallery atmosphere accommodated in the former oil-tank rooms. The space is designed dynamically: loft-spaces, the spacious foyer and exhibition spaces with a classical look, varied in height, area and lighting, give an intense rhythm to the colossal dimensions. Windows create visual links between the various areas. The detailing addresses the weight of the steel and brick tradition. In the field of materials, concentrating on glass and steel complements the substance of the building, which Herzog & de Meuron are showing with confident reticence.

 

Mack, Gerhard, Art museums into the 21st century, Birkhäuser, 1999

     
     
     
     
     
Photos and Plan