ATTENTION. The books are accessible only via the Tor Browser. Follow the guide HERE

 

 

 

 

 

OVERVIEW / PHOTOS ANS PLANS

 

 

Name   Munkegaard School
     
Architects   JACOBSEN, ARNE EMIL
     
Date   1948-1957
     
Address   Vangedevej 178, Gentofte, DENMARK
     
School    
     
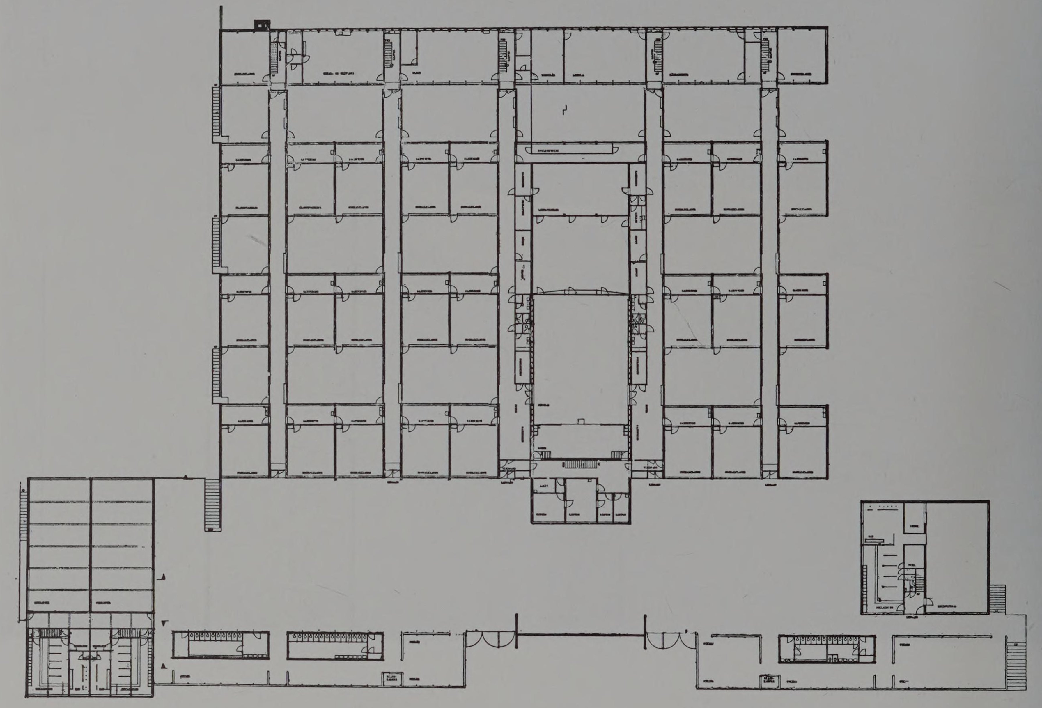
Floor Plan    
     
Description    
     
     
     
     
     
Photos and Plan