ATTENTION. The books are accessible only via the Tor Browser. Follow the guide HERE

 

 

 

 

 

OVERVIEW / PHOTOS ANS PLANS

 

 

Name   Canadian Clay and Glass Gallery
     
Architects   PATKAU, PATRICIA AND JOHN
     
Date   1986
     
Address   Ontario, Canada
     
School    
     
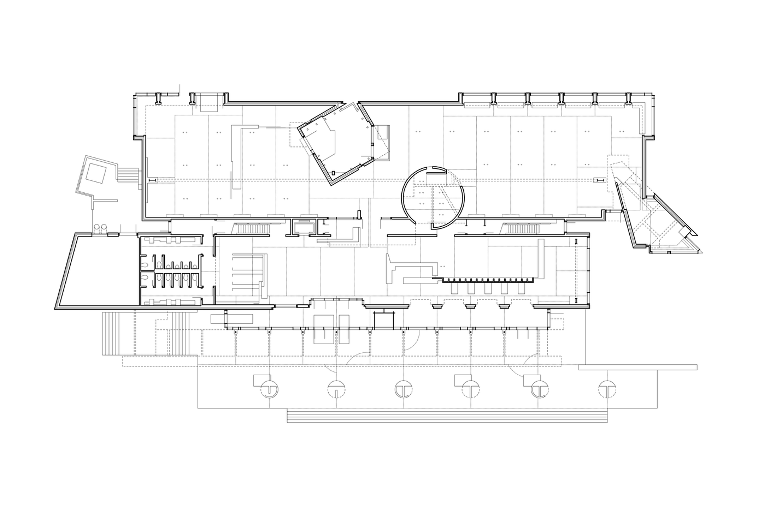
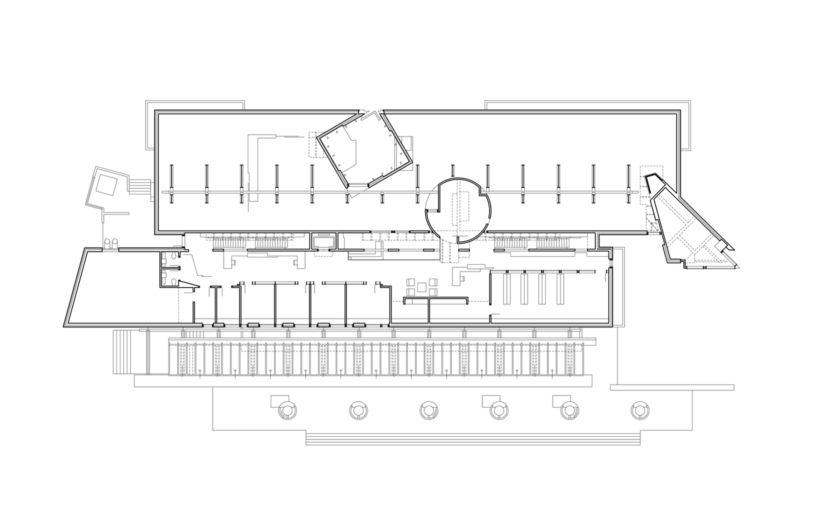
Floor Plan   1670 SQ.M.
     
Description  

The modern archetype of the museum space is the white cube: a pure white space, lit artificially, with no connection to the exterior. This model has arisen as a response to curatorial interests as well as the drive toward abstraction characteristic of art of the postwar period. A drawback with this type of space is the tendency of it to isolate art — to turn works of art into esoteric objects removed from everyday life.

 

Winning Submission, National Design Competition 1986

The design of this building takes advantage of the nature of clay and glass to provide an alternative to the white cube. First, the museum interiors are strongly connected to the outside world. Natural light from skylights, windows, and an exterior courtyard articulates the museum spaces and brings daily and seasonal cycles into the interior. Second, the construction of the museum interiors is not abstract but directly expressed: details reveal the layers of construction and articulate the relationships of materials to each other. In this way, the art objects displayed are connected to ordinary experiences so that they may be understood to be part of everyday life.


The construction of the museum reveals a simple hierarchy of building materials: The courtyard, small works, and tower galleries are reinforced concrete. The floor is also concrete, left exposed. Concrete masonry bearing walls, exposed to the interior, support roof and floor assemblies of wood decking on steel structure. On the exterior, walls are clad with brick veneer, detailed at openings to express the composite nature of the wall. Door and window frames are wood.

     
     
     
     
     
Photos and Plan