ATTENTION. The books are accessible only via the Tor Browser. Follow the guide HERE

 

 

 

 

 

OVERVIEW / PHOTOS ANS PLANS

 

 

Name   Apartment Building, 51–55 rue Raynouard
     
Architects   PERRET, AUGUSTE
     
Date   1932
     
Address   51–55 rue Raynouard, Paris, France
     
School    
     
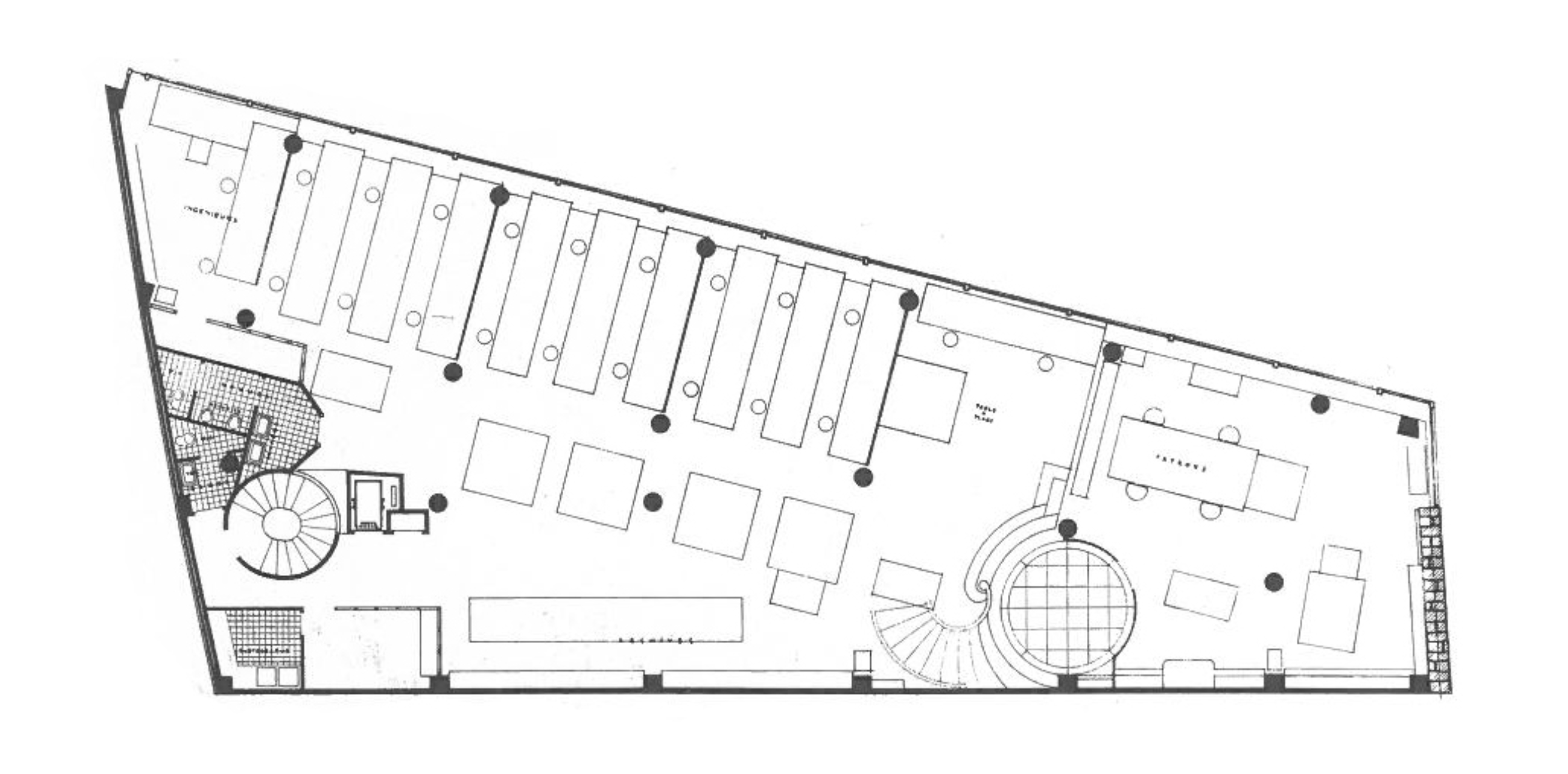
Floor Plan    
     
Description  

Auguste Perret built the apartment block at 51–55 rue Raynouard, Paris, in which he had his own residence and architectural office, between 1929 and 1932. Position and light seem to have been the watchwords both for the building as a whole and for the Perrets’ flat in particular. In 1930 the architect wrote: “Thanks to the favourable situation of the building, which is filled with sunlight from dawn to dusk, and to the heat-retaining precautionary tanks, a single source of energy is used: electricity, which runs the heaters (through storage), the kitchens, the hot water.” This list reveals the care taken by Perret to preserve comfort and the rhythm of life. The apartment has certain similarities to a lofty perch, from which, thanks to terraces and two external elevators, he was able to look down upon the city. It could also be seen to represent the social ascent of the builder-architect. Before 1930, the Perrets lived at the same address, 51 rue Raynouard, in the 16th arrondissement. But following his public recognition, the architect wished to ‘move up’ several floors, thus bringing together his home, his work and his reception area. Dominating rue Berton and situated one level below the rue Raynouard entrance was his agency with its elegant flight of stairs, which ‘le patron’ walked down every morning to go to work.

The main interest of Perret’s apartment block lies in the architecture and construction of its eight floors. In a description of the building, the architect highlighted the procedures used in its construction: “The building is constructed with reinforced concrete, and the fillings of the façade are triple-partitioned. Outside the concrete panels (linked with lime) are two plaster panes, separated by 0.04 m. The floors are made of reinforced concrete beams and fillets, and covered with parquet flooring. […] the windows, which are made of red pinewood with double-glazing, separated by a space of 0.03 m, are rendered waterproof by means of aluminium bronze strips.” This long citation contains no less than twelve references to materials and textures, all of them evocative of different colours and smells. Nonetheless, Perret continues, “it is the reinforced concrete frame, designed in such a way as to remain noticeable from the interior and the exterior, which adorns the house.”

The subtlety of detail allowed the architect to temper the structural rigour of the frame, the vertical windows and the rough concrete columns. Four of these free columns frame the central circle of the living room, which is marked at the floor and the ceiling. This design reveals Perret’s attempts to develop a modern architectural order derived from the architectural orders of Antiquity. His architecture is centred on mastery of proportion. Thanks to his detailed studies of interior circulation, Auguste Perret is able to offer different users complete access to this fluid space. The couple living in the apartment would be able to enjoy the sunrise in a number of different rooms, from the original octagonal bathroom to the living room. A guest, amazed by the elevator ascent with its view of the Eiffel Tower, would be able to discover another panoramic view – this time horizontal – through the numerous vertical bay windows of the large living room. The domestic staff had access to two large rooms overlooking the terrace and the street.

1928–1929 Auguste Perret worked on two major public commissions, both in Paris. In critical discourse, these large-scale projects have somewhat overshadowed the importance of his residential buildings. The apartment block in rue Raynouard could be considered a mature work of the architect, and representative of what the historian Joseph Abram would call ‘structural classicism’. From the exterior, the block is perfectly integrated into the building line of rue Raynouard, while from the interior, the building acts as a figurehead. Thus, it can be seen that Auguste Perret did not try to change the typology of the residential building, as did Henri Sauvage with his hygienist convictions, nor did he wish to introduce the formal rupture pursued by modernists such as André Lurçat and Michel Roux-Spitz. Nevertheless, the frankness of the block’s constructive vocabulary and the refinement of its materials make the building a landmark of modern French architecture.

 

Aymone Nicolas

100: one hundred houses for one hundred European architects of the twentieth century, Taschen, 2004

     
     
     
     
     
Photos and Plan