ATTENTION. The books are accessible only via the Tor Browser. Follow the guide HERE

 

 

 

 

 

OVERVIEW / PHOTOS ANS PLANS

 

 

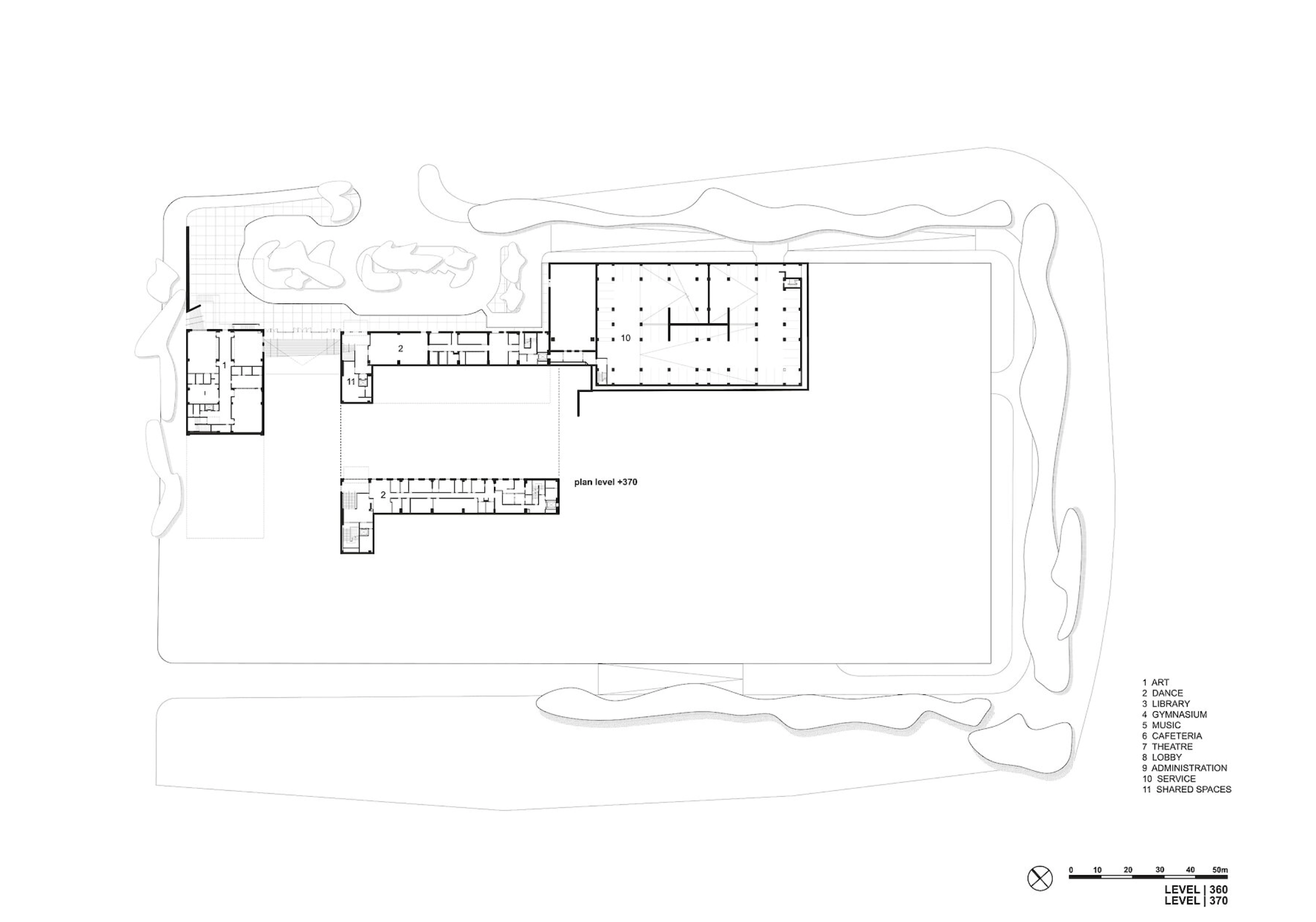
Name   Central Los Angeles Area High School #9 for the Visual and Performing Arts
     
Architects   COOP HIMMELB(L)AU
     
Date   2006-2008
     
Address   Los Angeles, California, USA
     
School   DECONSTRUCTIVISM
     
Floor Plan   31 138 SQ.M.
     
Description    
     
     
     
     
     
Photos and Plan